Проекты бань с мансардой. Бани с мансардой для ценителей хорошего отдыха: 230+ (Фото) Проектов (с бруса, с террасой, с верандой)
- Проекты бань с мансардой. Бани с мансардой для ценителей хорошего отдыха: 230+ (Фото) Проектов (с бруса, с террасой, с верандой)
- Проект бани с мансардой из блоков. Виды и планировки
- Баня с мансардой 6 н. Баня 6х6 метров с мансардой: современные готовые проекты и этапы строительства
- Проект бани с мансардой 6х6. Проект бани 6х6 из профилированного бруса
- Проект бани 4 на 8 с мансардой. Особенности
- Баня с мансардой 6 н. Планировка
- Проект бани с мансардой и террасой. Жилые и не жилые проекты бань с мансардой, беседкой, террасой
- Баня 4 на 7 с мансардой. Сруб бани 4 на 7 с мансардой
Проекты бань с мансардой. Бани с мансардой для ценителей хорошего отдыха: 230+ (Фото) Проектов (с бруса, с террасой, с верандой)
Проекты бань с мансардой – это возможность совместить активные водные процедуры на первом этаже и приятный релакс в чердачном помещении под крышей. Польза банного досуга не вызывает ни у кого сомнения. После парилки с веничком и контрастного душа значительно улучшается самочувствие – тело приобретает здоровье, а дух – бодрость. Мечта иметь в личном распоряжении спа-салон с комнатой отдыха, где можно с пользой провести время, обретает реальные черты.
Выбор проекта бани
Баня с мансардой – это двойное удовольствие для ценителей горячей парилки. Чтобы необычное сооружение отвечало вкусам хозяина, а также было удобно и безопасно, нужен хороший грамотный проект.

Баня – это возможность совместить приятное с полезным
Баня с мансардой – технически сложный объект . Проектное решение должно учитывать особенности, связанные с устройством дополнительного помещения. Полноценный строительный проект содержит эскизную и архитектурную части, конструктивный и инженерный разделы, финансовую документацию.
Разработанный профессионалами комплект чертежей и описаний поможет правильно подготовиться и организовать строительство, подвести коммуникации, обеспечить безопасность отдыхающих.

Двойное удовольствие для ценителей горячей парилки
Архитектурная часть проекта бани дает наглядное представление о фасадах строения, зонировании, составе внутренних помещений. Можно выбрать компактную постройку для семейного отдыха или масштабное сооружение для досуга в большой компании.
Проекты разрабатывают специализированное организации. Разнообразные решения предлагают строительные сайты. Хозяин усадьбы может подобрать вариант с учетом своего вкуса и реальных условий участка.
Преимущества
Мансарда – помещение под крышей, предназначенное для временного или постоянного проживания. Первые комнаты на чердаках появились во Франции и использовались для размещения прислуги.

Это технически сложный объект
Франсуа Мансар, известный архитектор, преобразовал пространство чердака, украсив его большими окнами и крышей оригинальной формы. С тех пор мансарды приобрели популярность. Их стали сооружать в постройках как эконом-класса, так и в роскошных апартаментах. В помещениях устраивают спальни, комнаты для отдыха или приема гостей.
Мансарда в бане – это дополнительная площадь, которую можно оборудовать для удобного отдыха в теплые месяцы года и в зимние холода.
Несомненными преимуществами выступают:
- простота строительства – не нужно возводить фундамент, стены;
- экономичность – полноценная комната на основе существующего здания гораздо дешевле отдельного строения;
- основные коммуникации уже проведены;
- мансарда создает дополнительную теплозащиту для нижнего этажа, особенно это ощутимо зимой;
- самое приятное – не нужно никуда уходить из бани, чтобы прилечь или пообщаться с друзьями.

Строительный проект содержит эскизную и архитектурную части
Красиво оформленная мансарда подчеркнет стиль, придаст неповторимость архитектурному облику здания.
Виды мансард
Чердачные помещения отличаются разнообразием конструктивных решений:
- для устройства мансард используют односкатные, двускатные, четырехскатные, вальмовые и полувальмовые кровли;
- благодаря ломаному силуэту крыши стены и потолки имеют разный уклон;
- мансарда может занимать пространство над основным строением или выходить за его пределы в виде консоли;
- при надежном утепление крыши помещение будет пригодным для жилья круглый год, при холодной кровле – эксплуатироваться летом;
- материал несущих конструкций, как правило, соответствует базовой постройке, в банях балки обычно изготовлены из дерева .

Мансарда в бане – это дополнительная площадь
Конструкция может быть одно- или двухуровневой, с балконом , оборудованной наклонными мансардными или вертикальными фронтонными окнами.
В отделке используются материалы и приемы, функционально и эстетически совместимые с оформлением бани.
Виды бань с мансардой
Для возведения бань используют традиционные материалы:
И современные:
- пеноблоки;
- керамзитобетон;
- ОСП.
В отделке популярны:
- вагонка;
- керамическая плитка;
В настоящей бане обязательно присутствует парилка.
Проект бани с мансардой из блоков. Виды и планировки
Готовые проекты бань с использованием пеноблока отличаются разнообразием. Они разнятся в зависимости от площади земельного участка, от потребностей конкретной семьи с учетом ее численности, от финансовых возможностей хозяев, а также их дизайнерских предпочтений. Можно выбрать баню любого размера, к примеру, 3х4, 3х5, 3х6, 4х4, 4х5, 4х6, 5х3, 5х5, 6х5, 6х6, 6х8 м и так далее.
Для дачи со стандартной площадью участка самым подходящим выходом станет возведение бани размером примерно 6 на 4 метра или даже 5 на 7. На таком пространстве точно поместится самое необходимое: раздевалка, которая одновременно является комнатой для релаксации, душевая, парилка. Хорошим дополнением станет открытая терраса или веранда.
Можно реализовать подобный проект и вовсе в самом экономичном варианте на площади 3 на 4 м, обойдясь без открытой площадки для отдыха.
Пеноблок позволяет построить своими руками не только простую коробку большой или малой площади, но и сооружение нестандартной формы. Можно выбрать одну из готовых планировок, предлагаемых в каталогах с проектами, или разработать ее самостоятельно.

Интересный вариант — строительство бани из пеноблоков с полукруглым фасадом. Надо учитывать, что такой проект уже не «впихнешь» на площадь 5х4, 6х4 или 5х6. Если позволяет земельный участок, если есть желание построить просторную баню, к примеру, 9 на 9 метров, за необычным полукруглым фасадом разместится не только просторная парная и моечная с бассейном или купелью, но и просторная комната отдыха с гардеробом, а также вспомогательные помещения — котельная, топочная и санузел.


Хорошим выходом станет строительство двухэтажной бани.
Она компактная и не съест лишнего пространства на имеющейся в распоряжении земле.

Куда удобнее разместить все, что надо, в двух этажах, нежели пытаться построить одноэтажное здание на площади, например, 3 на 10 метров.
Планировка такого строения может включать в себя не только парилку и моечную, но и просторную комнату отдыха, бильярдную и тот же небольшой бассейн. Хотя, если баня преимущественно используется в теплое время года, этот «водоем» может находиться и рядом с баней под открытым небом, а также на веранде или под навесом, имея вполне приличный размер. Основной сложностью таких проектов считается грамотная организация стока воды. Нужно обязательно предусмотреть дренажную систему.

Достоинства двухэтажой бани:
- Если баня двухэтажная, на втором этаже всегда будет тепло за счет обогрева, идущего от парной.
- На первом размещают комнаты, непосредственно связанные с банной функцией, а также кухня и столовая. На втором — жилые комнаты.
- Такая баня будет смотреться весьма представительно по сравнению с простой одноэтажной.
- Баня с мансардой также станет хорошим выходом на небольших по площади участках.
«Вариаций на тему» двухэтажных сооружений такого назначения среди предлагаемых планировок немало. Вы можете реализовать проект настоящего банного комплекса, по сути, представляющего собой полноценный дом, под крышей которого объединено почти все, что нужно для загородной жизни: это и жилые комнаты, и гостиная, и хозяйственные помещения с гаражами.

Баня с мансардой 6 н. Баня 6х6 метров с мансардой: современные готовые проекты и этапы строительства
Баня с мансардой в современном стиле
Баня издревле была в каждом русском дворе. В современном мире она стала скорее способом собраться с друзьями и родственниками и провести время с пользой для организма. Если выбрать размер 6 х 6 м, можно получить строение, где с легкостью разместятся все необходимые помещения. Встречаются различные виды таких сооружений: одноэтажные сили,.
Интересный проект с мансардой, балконом и верандой
Зачем нужна мансарда?
Такой проект позволяет разместить на компактном участке все необходимые банные помещения и комнаты для отдыха. Кроме того, мансарда позволит создать, при этом сэкономив средства. Она расширяет полезную площадь, создавая комнату, используя кровельные конструкции. Часто на втором этаже обустраивают место для отдыха, размещают бильярдный стол, а также удобную и функциональную мебель.
Кроме этого, из мансарды можно сделать:
- Гостевую комнату.
- Спальню на летний период времени.
- Кладовую или хозяйственное помещение, в котором удобно хранить вещи и инвентарь.
Лучше запланировать все заранее и спроектировать.
Постройка из светлого дерева смотрится эффектно
Проект 6 х 6 – самый востребованный
Выбор размеров основных помещений зависит от индивидуальных желаний хозяина. Можно создать, если планируется использовать баню в теплое время года. В случае пользования банькой круглый год площадь сокращается для обустройства прочих комнат.
В первой комнате – прихожей – оборудуется. Размеры других помещений могут быть разными.
Вот один из вариантов планировки банного комплекса:
Важно! Главное помещение – это парная. Она может иметь площадь 4 кв. м. В комнате размещаются двух- или трехъярусные полки и печь . Важно учесть такие нюансы: верхняя полка должна отступать не менее 1 м от потолка, ширина составляет 0,7 м, а длина – 2,5 м и более .
- Возле парной должна находиться моечная размером примерно 4 кв. м и более. В этом помещении оборудуюти купель или небольшой.
- Для предбанника или комнаты отдыха нужно оставить 7 кв. м площади, поскольку отдыхать могут одновременно много человек.
- Не забудьте о наличии, для него не нужно много места – хватит 2 кв. м. Оставшуюся часть занимает терраса.
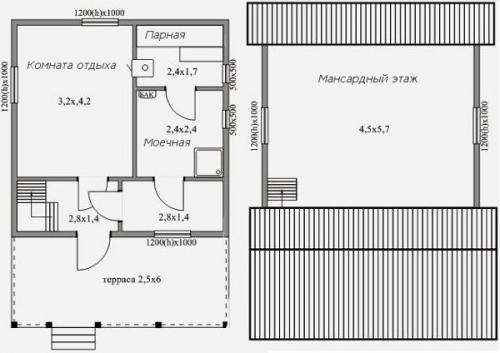
Схема проекта бани 6 х 6 с мансардой
Для создания полноценного помещения его нужно оборудовать окнами и дверями. В парной окно не делают, в моечной достаточно небольшого окошка, а вот в комнате для отдыха ставят стандартный оконный проем.
На заметку! Двери устанавливаются небольшие – до 1,7 м высотой. Полы в бане делают деревянные с уклоном для стока воды
Материалы, которые понадобятся
Строительный рынок предлагает разнообразные материалы для строительства зданий:
- .
- Кирпич.
- Пенобетон или газобетон.
Самым популярным для бани остается натуральный материал – дерево. Многие производители предлагают готовые проекты из древесины, которые быстро монтируются и служат продолжительный срок. Для внутренней отделки подойдет липа или осина, которая распиливается на доски или.
Баня – отличное место отдыха
Для создания кровли используются такие:
- односкатная;
- двускатная;
- шатровая.
На заметку! Для размера 6 х 6 чаще всего используют двускатную конструкцию. Односкатные кровли подходят для небольших строений.
Инструкция для возведения строения
Возведение строения из любого материала не слишком отличается друг от друга. Главное – соблюдать определенную последовательность действий.
Первый этап. Подготовительный
Важно правильно выбрать место на. Хорошо, если получается возвести баньку на берегу водоема. Это позволит после парилки охладиться, окунувшись в студеную воду. Такая процедура повышает иммунитет и укрепляет организм. Если подобная возможность отсутствует, то стоит обустроить купель или бассейн.
Баня на берегу озера
Хорошим местом станет возвышение на участке. Не размещайте строение возле дороги, если хотите скрыть от любопытных глаз отдыхающих налюдей. Выбранную территорию очищают от мусора и растений, а также выравнивают.
Второй этап. Создание фундамента
Поскольку строение из дерева получается легким, то нет потребности в сложном фундаменте. Подойдет один из вариантов: ленточный или столбчатый.
- Ленточный фундамент имеет форму замкнутого по периметру сооружения круга. В траншее создается из досок опалубка. На дно настилается слой песка в 15 см толщиной. Глубина траншеи составляет полметра, а ширина должна быть шире планируемого фундамента для учета опалубки. Этот вариант более надежный и позволяет сделать подвал под зданием.
- Столбчатый вариант выполняется путем изготовления свай, которые закапываются в землю на глубину ниже, чем промерзает грунт. Установка свай происходит по углам строения и через каждые 2 м по периметру. Этот вариант дешевле.
Проект бани с мансардой 6х6. Проект бани 6х6 из профилированного бруса
Баня из профилированного бруса 6х6 с мансардой стала популярной в последнее время, связано это по большей части с высокими эксплуатационными качествами, которыми обладает материал . Сюда можно прибавить также меньшие затраты времени и труда на создание чертежа такой бани и ее строительство, чего лишены проекты бань 6 на 6 с мансардой из бревна.Привлекательность такой конструкции можно придать за счет использования разных типов облицовочных материалов.

На схеме распространенные проекты бань с мансардой 6х6
Указанный выше проект бани 6х6 с мансардой из бруса предусматривает наличие террасы, из которой вы попадаете в небольшое помещение, в котором будет находиться коридор, а оттуда вы уже открывается комната отдыха или предбанник.
Из коридора вы также можете подняться на второй этаж по лестнице.
- Площадь предбанника рассчитана с таким условием, чтобы в данном помещении можно было расположить вешалку для одежды, которую вы будет снимать перед тем, как направитесь в парилку. А также здесь будет находиться небольшой запас дров для банной печи;
- Из предбанника дверь ведет в моечную, а потом в парилку. В моечной вы можете расположить душ с поддоном и бак с горячей водой;
- В парной будет размещаться печь-камин, которая будет топиться из комнаты для отдыха бани . Причем вход в комнату отдыха обустроен прямо из предбанника. Сделано это для того, чтобы в данном помещении не было слишком высокой влажности;

Окно в парилке
Обратите внимание!
В моечной и в парилке обычно имеются окна с небольшими размерами – 50 на 50 см, за то в комнате отдыха окно зачастую достаточно большое – 120 на 100 см.
Сделано это для того, чтобы в данную комнату поступало больше солнечного света.
В результате этого будет создаваться естественное освещение, а также это позволит вам наслаждаться прекрасным видом из окна.
- Двери в таком строении можно установить любого размера. Главное – правильно выбрать материал для них так, чтобы он отличался долговечностью, позволил теплу, как можно дольше оставаться в данном помещении и мог хорошо противостоять воздействию на него влаги;
Совет!
Двери желательно делать поменьше, чем обычные дверные конструкции.
Связано это с тем, что небольшая дверь будет способствовать лучшему сохранению тепла.
Самый оптимальный размер для банной двери – высота не более 180 см, а ширина не более 70 см.
Двери для бани
Двухэтажные бани с верандой и балконом
Чаще всего проекты бани 6х6 с мансардой можно видеть из сруба, выполненного из бревна или бруса. Что касается каркасных бань данного размера, то их сейчас встречается очень мало. Отличие этих строений – цена и материал, используемый для строительства.

Конструкция с угловой верандой
В проекте ниже представлено двухэтажное строение, здесь на первом этаже размещается терраса, а на втором этаже предусматривается расположение балкона.

Распространенный вариант первого этажа
Такой проект сруба бани 6х6 с мансардой имеет следующие решения:
- устанавливать такое строение нужно на столбчатый фундамент;
- высота потолков на первом этаже бани и втором практически одинаковая (на первом этаже – 2,25 м, а на втором – 2,20 м.);
- так как общие габариты моечной и парилки не значительные, то санузел целесообразнее будет разместить в комнате для отдыха;
- на верх можно подняться по лестнице, которая ведет из комнаты отдыха. Она обустроена под двухскатной крышей. Строительная система в этом случае монтируется из бруса 5 на 10 см;
- крышу у такой конструкции планируется покрыть еврошифером, вследствие чего по стропилам из обрезной доски на 20 мм создается обрешетка. В качестве утеплителя будет использоваться стекловата;

Второй этаж
Совет!
Дверь, ведущую на балкон лучше сделать остекленной.
Так вы позволите дополнительно обеспечить поступление солнечных лучей в данное помещение.
На 19 м2второго этажа расположено одно небольшое окно, которое размещено над лестницей, и его может быть недостаточно для полноценного освещения.
Строительство двухэтажной бани из оцилиндрованного бревна
В сравнении с конструкциями, возведенными из других материалов, такое строение имеет массу преимуществ, из которых можно выделить идеальную подгонку бревен друг к другу. Это сокращает долю использования ручного труда и время проведения строительных работ.

Сделано из бревна
Кроме этого, по причине идеальной формы бревен достигается лучшая плотность соединений между всеми элементами сруба, вследствие чего повышается процент его прочности и теплоизоляции. Деформация материала снижается до минимума.
Такая баня, возведенная своими руками, имеет превосходный внешний вид, который позволяет обойтись без внутренней и наружной отделки данного строения. А срок службы ее намного выше, нежели чем у конструкции, возведенной из бруса.
Проект бани 4 на 8 с мансардой. Особенности
Баня с мансардой – решение относительно новое, которое только недавно получило признание. Использование мансардного пространства открывает много возможностей:
- можно оборудовать комнату отдыха;
- отвести место под бильярдную;
- соорудить тренажерный зал;
- оставить чердак для хранения мелочей: полотенец, банных веников и подобного.
Однако лучше всего мансарду превращать именно в комнату, в которой будет приятно провести время. Организация пространства над баней имеет множество преимуществ:
- Так можно сэкономить пространство, рационально используя все имеющиеся квадратные метры.
- Большая баня с такой надстройкой, например, площадью 8 на 9 м, может использоваться как полноценный гостевой дом, что решит проблему размещения большого количества друзей или родственников.
- Мансарду можно переделать под веранду, полностью застеклив торцевые стены, или можно дополнить ее террасой, если сделать выход на открытый балкон. Такие видовые решения никого не оставят равнодушным.
- Бани с мансардными этажами выглядят намного привлекательнее невысоких одноэтажных строений. Они лучше вписываются в любую окружающую обстановку.
При использовании пространства под крышей становится возможным сэкономить на его отоплении. Если все правильно рассчитать, то мансардный этаж будет топиться от банной печи и на нем всегда будет комфортная температура. Если же баня используется только в летний период, то можно использовать мансарду летом как жилую комнату. Еще одно решение – оборудовать на ней летнюю кухню с красивым видом на окружающую природу.


Баня с мансардой 6 н. Планировка
При планировке бани 4х6 нужно учитывать разные нюансы – какие комнаты там будут располагаться, будет ли это помещение с террасой или мансардой, маленьким бассейном, санузлом, будет ли 2 этажа или один. Для всех этих вариантов следует подготовить чертеж, на котором будут обозначены все объекты с размерами, в крайнем случае потребуется хотя бы предварительная схема всех помещений. Рассмотрим некоторые варианты проектов, которые можно реализовать на данном пространстве.
- Несложный проект может выглядеть так. Есть все необходимые комнаты для проведения полноценного отдыха. Их размеры позволяют разместить там все, что нужно.

- План двухэтажной бани позволяет построить симпатичный дом, где, помимо всех важных помещений, будет еще и дополнительное – на втором этаже. Располагающееся отдельно пространство позволяет оборудовать там любую комнату – хоть спальню, хоть бильярдную, хоть комнату отдыха. При этом освободится пространство внизу.


- Еще один удачный проект со всеми помещениями, которые включает русская баня . Но к тому же дом дополнен туалетом, что очень удобно. Грамотное планирование пространства позволяет сделать баню с террасой или верандой, где можно в летнее время выпить чаю, наслаждаясь пейзажами. А если хорошо утеплить помещение, то здесь будет неплохо и в холодное время года.

Неважно, какая будет строиться баня – одноэтажная или двухэтажная, с какими дополнительными удобствами, но в ней должны присутствовать обязательные помещения, без которых не будет комфортного отдыха.
Предбанник
Пространство, которое отделяет улицу и само помещение бани. Некоторые из-за экономии пространства иногда отказываются от него. И зря. Его присутствие позволяет дольше сохранить теплый воздух в других помещениях, особенно это касается холодного времени года. Кроме того, в предбаннике обычно располагают необходимые вещи, такие как вешалка для одежды, полка для обуви. Здесь может находиться небольшой ящик или шкафчик с инструментами. Если позволяет место, здесь же можно разместить дрова или уголь.

Проект бани с мансардой и террасой. Жилые и не жилые проекты бань с мансардой, беседкой, террасой
Жилой проект на втором этаже включает комнату для жилья. Эту площадь можно разделить на несколько гостевых зон. На первом этаже поместятся: парилка с печью, гостиная и душевая.
Если баня не является местом постоянного жительства, то мансардный этаж прекрасно подходит для хранения вещей и ночевки. При этом отпадает необходимость постройки отдельного дома на загородном участке. А это колоссальная экономия денег.
Баня с мансардой и верандой идеальный способ сэкономить и место на участке. Верхний ярус помимо жилплощади может использоваться, как:
- складская комната;
- мастерская;
- бильярдная.
На свободных метрах участках можно организовать беседку, сад или огород.
Бани с мансардой (проекты, цены, планировки)
Опишем самые удачные в плане планировки варианты. Существуют готовые проекты, разработанные по всем строительным нормам. Но ознакомиться с основными сведениями о конструкции бани с мансардой и террасой необходимо.
Компактный дом-баня 4х6
Такой вариант считают универсальным. Строение не требует большой части участка. Проекты деревянных бань с мансардой представлены на рисунках.
По запросу покупателя комнату отдыха возможно сделать в круглом дереве, что уберет необходимость отделки стен и придаст визуально привлекательный вид стенам. В жилом доме-бане уровень высоты первого яруса не рекомендуется делать ниже 2,5 м.
Баня 4 на 7 с мансардой. Сруб бани 4 на 7 с мансардой
Подсобные постройки на загородном участке могут иметь различное предназначение. Их количество, размеры и предназначение определяется индивидуальными предпочтениями владельцев и размером самого участка. Сруб бани 4х7 с мансардой хорошо впишется в окружающий дизайн участка и станет настоящей находкой для владельцев загородной земли в ограниченном размере. Именно наличие мансардного этажа позволяет полностью решить проблему нехватки свободного пространства, получить дополнительные квадратные метры в помещении, которые можно использовать по собственному усмотрению.
АКЦИЯ: 6 стена 2.5м в лафет, разделяющая парную и моечную при заказе любого сруба под баню в подарок !




Описание
- Площадь сруба бани: 49 м2
- Диаметр используемых бревен: от 24 см
- Интервал от потолка до пола: 2,2 м
- Интервал от конька до потолка: 1,7 м
- Бесплатная доставка и установка
- Размеры срубов указаны внутренние
- Изготавливаем из зимнего леса
Цена (рубка в лапу): 410 000 руб.
Цена (рубка в чашу): 510 000 руб.
Цена (рубка в лапу): 480 000 руб.
Цена (рубка в чашу): 580 000 руб.
Двускатная крыша Ломаная крышаБазовая комплектация
- Внутренняя стена-перегородка протёсывается с двух сторон в лафет;
- Рубка угла в лапу без выхода концов наружу;
- Стены изнутри сруба протёсаны до ровной поверхности или в кругляк;
- Балки для потолка и пола делаем из бревна;
- Утеплитель между брёвен - мох или пакля, (выбирает сам заказчик);
- Бетонно-столбчатый фундамент из блоков 20х20х40. Песок предоставляет Заказчик;
- Стропильная конструкция 2-х скатной крыши из бревна. Расстояние между стропил 0.8м;
- Крыша зашивается обрезной доской 25 мм.;
- Цемент, гвозди и рубероид включены в комплектацию;
- Потолок обшивается вагонкой 20 мм.
- Пол обшивается шпунтованной доской 36 мм.
- Фронтон крыши обшивается вагонкой толщиной 25 мм.