Баня 6 на 6 с террасой. Баня 6 на 6: проект и его особенности
Баня 6 на 6 с террасой. Баня 6 на 6: проект и его особенности
План бани 6х6 может иметь разный вид, такой размер дает хорошую возможность реализовать многие идеи.
Стандартным набором помещений, которые обязательно должны быть в любой бане независимо от ее размеров, являются: парная, моечная и комната отдыха. В этом проекте получатся вместительные и просторные помещения, поэтому в них будет комфортно даже большой компании.
При выборе плана бани особое внимание обращайте на размеры комнаты отдыха. Если в парной и моечной обычно находится не более 4-5 человек, то в комнате отдыха собирается вся компания. В ней должно найтись место для стола и лавок, а также важно, чтобы люди могли беспрепятственно передвигаться по ней.
Но учтите, что при отсутствии тамбура в комнате отдыха будет прохладно, и возможно появление сквозняков, т. к. с улицы вы будете попадать сразу в комнату.
Планировка бани 6х6 может предусматривать наличие и других помещений. Если вы собираетесь ходить в баню круглый год, то рекомендуется сделать в ней отдельный тамбур. Он будет защищать комнату отдыха от холодного воздуха. Кроме того, в предбаннике удобно хранить верхнюю одежду, обувь и.
Несложно найти или составить чертеж бани 6х6 с полноценным санузлом. Согласитесь, гораздо удобнее, когда туалет есть непосредственно в бане, и не приходится бегать в соседнюю постройку, особенно зимой. Тем более для санузла нужно совсем немного места (всего 1,5-2 квадратных метра), при этом уровень комфорта в бане значительно возрастет.
Многие предпочитают строить баню 6х6, планировка которой предусматривает террасу. Открытая веранда – это отличная альтернатива комнате отдыха в летнее время. Все любят отдых на природе, особенно в теплый летний день. Немаловажным является и то, что терраса имеет крышу, которая защитит вас от дождя и позволит съездить на природу даже в дождливый день.
Проекты бань 6х6 имеют довольно большие размеры, поэтому вы можете предусмотреть наличие бассейна. Его можно поместить в комнате отдыха, на террасе или расположить рядом с баней под навесом. Если ваша планировка не позволяет установить бассейн, можно ограничиться купелью.
Угловая баня 6 на 6
Главным преимуществомявляется ее компактность. Немаловажным является и удобство ее размещения, т. к. такая постройка прекрасно впишется в угол земельного участка, оставив просторный двор.
В этом проекте имеется просторная моечная, в ней можно поместить купель или небольшой бассейн. Большая комната отдыха подойдет для большой компании. Эта баня имеет всего 3 помещения и террасу, но благодаря отсутствию лишних помещений, баня получается просторной и вместительной.
Баня 6х6 с санузлом и верандой
В этом проекте есть небольшое крыльцо, отдельный тамбур, парная, душевая, комната отдыха и санузел. Баня получается простой, благодаря чему ее постройка обойдется недорого. При этом здесь есть все основные помещения, поэтому отдых в бане приятен и комфортен.
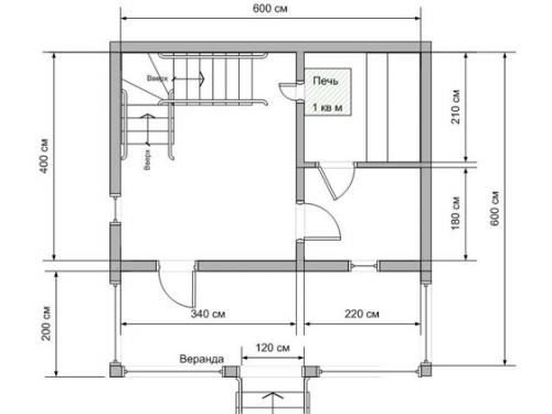
Баня 6 на 6 с мансардой
Планировка бани 6х6 с мансардой и туалетом подходит для тех, кто хочет использовать постройку не только в качестве бане, но и в роли дачного или гостевого домика.
В проекте бани есть просторная веранда, где уместятся стол и лавки. На втором этаже размещается комната 6х4, где можно сделать спальню.
Двухэтажная баня 6х6: планировка, фото
Проект двухэтажной бани имеет важное преимущество: он компактный и вместительный. Такой вариант идеально подходит для тех случаев, когда участок земли небольшой, но при этом хочется сделать постройку максимально функциональной.
Планировка предусматривает тамбур, парную, котельную, санузел, комнату отдыха. Второй этаж занимает огромная спальня. При желании ее можно разделить на несколько отдельных помещений. Другой вариант – разместить на втором этаже бильярдные столы, сделать зону для массажа, оформить детский уголок, в итоге получится место для комфортного отдыха.
Баня 6 на 6 с комнатой отдыха. Тонкости процесса проектирования
При составлении план-проекта следует обязательно помнит о значимых деталях. Планировку делят на несколько площадей, варианты могут быть самыми разными, но обычно в наличии всегда есть такие комнаты:
- Санитарный узел.
- Душевая комната.
- Парилка.
Все помещения составляют по индивидуальным проектам, потому что каждый владелец бани 6 на 6 создает планировку под себя: знает, сколько максимум персон будет отдыхать одновременно, как лучше распланировать и обставить комнату для отдыха, а также парилку. Для рационального планирования сруба применяют несколько стандартных приемов. Печь размещают около стеновой поверхности, которая является смежной с угловой комнатой для отдыха. При этом не стоит забывать про пожарную безопасность. Обычно топочное отверстие выводят в предбанник. Крайне важен и тамбур, потому что он дает возможность сберегать все тепло в холодное время года, а еще являться свободной площадью
. При разработке схем и чертежей бани размером 6*6 метра стоит обязательно принять во внимание следующие нюансы:
- Бассейн чаще всего делают в комнате для отдыха.
- Парную проектируют так, чтобы она была больше помывочной комнаты.
- Канализационная труба расположена около сливной ямы.
- Разрешено делать с любых частей объекта.
Размер банного строения 6*6 метра удобный, и его несложно распланировать под баню. Так, мойку обустраивают в самой парилке, делают электрическую или дровяную печь. Из бруса следует сделать полочки из древесины, размер которых должен быть не менее 0.5 метров. Туалет должен быть расположен около помывочной, а туалет следует разместить рядом с местом для купания. Предбанник по традиции дополнительно играет роль хозяйственного блока, в котором хранится уголь и дрова, банные принадлежности, а еще в нем можно переодеться. Комната отдыха является местом, где можно поесть, выпить и посмотреть телевизор. Стены в такой комнате обшивают при помощи деревянной вагонки, а еще иногда применяю листы нержавеющей стали с толщиной в 0.3 см. Такая баня будет идеально поддерживать оптимальный температурный уровень, что даст возможность сэкономить кубические метры топлива (угля или дров). Особое внимание следует уделить тамбуру, где можно обустроить раздевалку. Единовременно это и техническое помещение, которое является тепловым изолятором, предохраняющим выход нагретого воздуха из парилки.
Проект бани 6 на 6 2 этажа. Баня из древесины
Натуральное дерево – материал ценный, экологичный и любимый всеми. Такой аромат, который создает древесина, ни одна аромалампа не сможет передать. Тут и красота, и практичность, и ароматерапия. Ведь если правильно выбрать породу дерева, то баня простоит не одно десятилетие.

Образец русского зодчества на современный лад
Совет: какой бы тип древесины вы не выбрали, убедитесь, что она хорошо высушена. Иначе перекос вам гарантирован. А если вы задумали баню 6×6 с двухэтажной планировкой, конструкция не будет прочной в силу будущей деформации материала.
Поделимся рекомендациями, какое дерево можно брать, а какое не стоит.
- Осина подойдет. Да и древесина у нее очень ароматная.
- Липа. Как и липовый мед, веник, дерево тоже обладает оздоровительными свойствами.
- Дуб, бук – деревья прочные, с плотной древесиной. И вот именно из-за такой несгибаемости они не подходят. Повышенная влага «поведет» стены.
- Сосна, ели, лиственница и прочие деревья с иголочками вместо листочков не подойдут.

Деревянная баня 6×6

Вариант двухэтажной бани с террасой
Можно встретить советы, что для стен хвойные породы деревьев подойдут. Дескать, они дешевле и прочнее. Но только в том случае, если планировка бани 6×6 предусматривает парилку с собственными стенами. Согласитесь, под действием пара сосновый брус или бревно начнет «плакать» смоляными слезами. Нужно ли это?
Кстати, о разновидности материала из древесины. Что предпочтительней – брус или бревно?
- Бревно изначально нужно около 6 месяцев просушить. Готовы ждать?
- Однако бревенчатые бани выглядят самобытно, в духе древнерусских традиций.
- Зато бани из бруса экономически выгодны и намного быстрее возводятся.
На бани из бруса уходит и материала, и времени меньше, и стоит этот материал намного дешевле бревен. Если бревно – это первично обработанная древесина, то брус – это пиломатериал. Он и высушивается, как следует, и нарезается уже заготовками по 6 м.

