Как построить баню из бруса своими руками от фундамента. Фундамент бани
Как построить баню из бруса своими руками от фундамента. Фундамент бани
Тип фундамента для бани из бруса можно выбрать абсолютно любой, так как строение не является сверхтяжелым. Он может быть свайный, ленточный, столбчатый или плитный. Но к нему есть некоторые сопутствующие требования.

- Фундамент для самого строения и для печи категорически запрещается делать единым целым. Это ограничение действует по причине разницы температур печи и строения. Единый фундамент может привести к деформации конструктива постройки.
Неправильно изготовленный фундамент для бани
- Независимо от типа фундамента обязательна выемка грунта на глубину 30-50см под всей плоскостью будущего основания здания, и засыпка слоя песка толщиной 10-50см. При этом надо учитывать, что от верха песчаной подсыпки до низа деревянных конструкций пола бани должно быть выдержано расстояние от 40 до 60 см. Это нужно для того, чтобы была возможность циркуляции воздуха под полом, а песок в свою очередь будет забирать на себя излишнюю влажность. Тем самым вы своими руками надолго защитите основание бани от гниения и грибка, которые вызывают не только повреждение конструкций, но и вредны для организма человека.

- Также очень важным фактором является глубина заложения фундамента. Как мы ранее указали, тип фундамента можно выбрать любой, но глубина основания должна быть ниже глубины промерзания грунта. Это основа основ для любого фундамента, независимо от его назначения.

В свою очередь мы рекомендуем сделать для бани ленточный железобетонный фундамент. Для него потребуется выкопать траншею на глубину промерзания грунта по предварительно подготовленной схеме, с нанесением всех мест расположения стен.
Далее изготовьте двойной каркас из арматуры диаметром 12-14 мм, с шагом 200мм
Установите опалубку из щитов или обрезной доски

Для последующего монтажа элементов труб водопровода, канализации и крепления нижней обвязки не забудьте установить закладные детали.
Залейте все бетоном марки М250 или выше.
После высыхания бетона снимите опалубку и покрасьте стены битумным праймером.
Фундамент для печи можно изготовить из бетона или кирпича. Площадь опоры должна быть на 10 см больше, чем площадь основания печи.

Как построить баню из бруса 6 н. Планировка бани 6x4 — идеи, материал, этажность
О чем задумываются владельцы коттеджей и загородных домов? О том, как хорошо было бы поставить баньку. Ведь это SPA-салон в собственном распоряжении. А какая площадь должна быть?
В маленькой будет тесно, большая будет быстро остывать и усилий на поддержание микроклимата придется прикладывать много. А вот баня 6×4 метра – один из оптимальных размеров.
Строить баню самим? Почему бы и нет, если есть талант к строительному делу, необходимое оборудование и много сил. Купить? Такой вариант тоже хорош, поскольку получаете уже готовый банный комплекс. Но точно ли все устроит?

Сами будете строить или закажете готовое здание, проект бани 6×4 вам понадобится. Предлагаем несколько фото с размерами и внутренней планировкой. Так можно визуально представить, где вы и гости будут париться, где принимать душ, переодеваться и отдыхать.
План бани может быть один, а вариантов исполнения несколько в зависимости от материала для строительства стен. А если что-то не устраивает, можно внести дополнения в проект в виде веранды или террасы внизу или мансарды наверху.
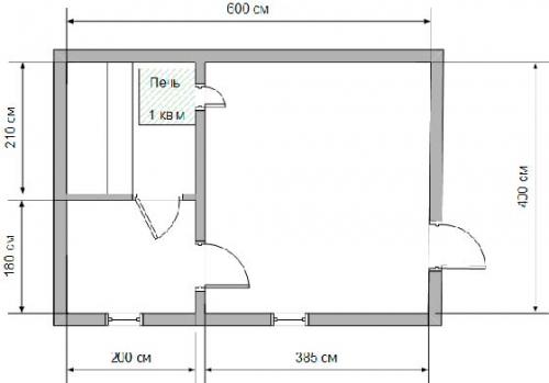
Планировка бани 6×4 метра
Что должно быть в бане помимо самой парилки и сеней? Забудем темные и тесные деревенские строения, как помещения для купания. Сегодня баня – это место отдыха, поэтому план бани 6×4 должен быть хорошо продуманным. Что в него включить?


- Парная. Здесь стоит печь, находятся лавки с лежаками. Обычно парная занимает вторую по величине комнату и находится, как правило, в углу здания.
- Душевая. Находятся мойка и парилка отдельно, иначе либо парилка остынет, либо душ не принесет желаемого облегчения.
- Предбанник – место, где можно оставить вещи.
- Комната отдыха – самое большое по площади помещение. Здесь и удобные диваны, кресла и стол, и телевизор. Включив фантазию, можно украсить комнату живыми цветами и комнатным водопадом.
Комната отдыха внутри самой бани – отличное место для зимнего времяпрепровождения. А летом будет приятно посидеть на открытой террасе, в межсезонье – на застекленной веранде. Стоит продумать этот момент и спроектировать план бани 6×4 с террасой или верандой. С фото таких вариантов мы поможем.
Хочется в бане иметь помимо стандартных помещений еще и бассейн? Планировка бани 6×4 может учитывать и это. В таком случае понадобится второй этаж или мансарда. На них можно оборудовать раздевалки, комнату отдыха или душевую, а парилку или бассейн оставить снизу. Вдохновляйтесь фото-идеями.



Подробней о помещениях
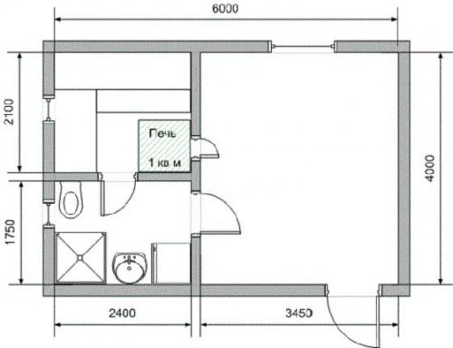
Классическая баня 6×4 имеет три помещения.

Комната для отдыха, парная и душевая
Предбанник
Здесь гости раздеваются, тут же в ящиках хранится уголь или дрова для печи, а на полках веники.

Для экономии места предбанник часто объединяют с гостевой комнатой, расставляя здесь мебель, устанавливая телевизор и другие приборы, накрывая стол.
Его площадь в идеале – из расчета на 1 человека по 1,3 кв.м + место для хранения банных принадлежностей и вещей.
Важно! В комнате отдыха должно быть окно.
Парилка
В помещении стоит печь – натуральная, газовая или электрическая. К стенам крепятся полки. Здесь требования иные – минимум по 1 метру на каждого + печь + расстояние от печи до стен и проходы.

Идеальная высота – 2-2,1 метра. Если потолки будут выше, пар будет занимать лишнее, неиспользуемое пространство. Если ниже – накапливаясь, горячему воздуху понадобится выход, и он улетучится в вентиляцию. Ширина полок – 40-90 см.
Важно! Дверь должна открываться не в парилку, а из нее, то есть в комнату отдыха. В противном случае в предбаннике будет высокая температура и влажность.
Как могут париться гости и хозяева в парной, приведено на схеме ниже.

Как правильно париться
Душевая
В зависимости от размера помещения, здесь можно установить душевую кабинку, туалет, вмонтировать душ в стену.

Обогреваться душевая может той же печью, что и парилка (если у них смежная стена).
Выбрав планировку с учетом необходимых помещений в бане и их размерами, нужно определиться с материалом, из которого и будет возводиться комплекс.
Баня из бревна
Баня из бревна – это классика. И наиболее популярны оцилиндрованные бревна. Деревенские парилки как раз и возводили из сруба.

Прелесть таких комплексов в том, что дерево – материал здоровый, экологически чистый. Возводится такая баня в рекордные сроки. Если бревна обрабатываются механическим способом, а не вручную, стоимость их невелика. Сэкономить можно и на внутренней отделке – дерево само по себе прекрасно. А для пожаробезопасности и противостояния грибкам бревна обрабатываются специальными растворами.
Недостатки появятся, если компания, вызвавшаяся поставить баню, не просушила бревна, поэтому через некоторое время здание «поведет», или неправильно выбрала дерево: хвойные породы «плачут», дуб может растрескаться от жары.
Как построить баню из бруса 100х100. Некоторые особенности
Для строительства бани наиболее подходящим материалом является древесина. Многие отдают предпочтение профилированному брусу из-за эстетичности его внешнего вида, прочности и простоте кладки. Материал может быть как цельный, так и состоять из склеенных между собой ламелей — распиленных досок. Если подходить к вопросу с точки зрения экономичности, то выбор можно остановить на профилированном брусе с естественной влажностью. Понятно, что потребуется некоторое время для усушки, однако при соблюдении технологических правил во время возведения бани качество сооружения будет на самом высоком уровне.
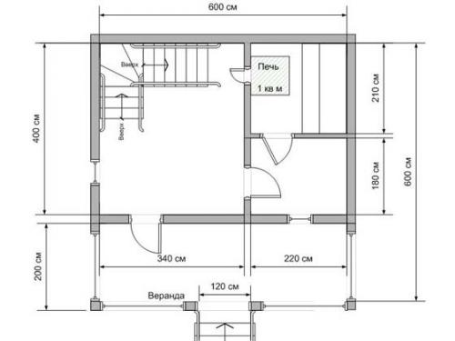
Вариант план-схемы бани из бруса.
Брус любого вида имеет конкретные размеры. После составления проекта строения и определения параметров делается закупка материала для строительства, в частности бруса с сечением 100х100 мм. Он бывает нескольких разновидностей и характеризуется с точки зрения влагосодержания:
- Брус из древесины естественной влажности, она не превышает 20%. Материал должен подвергнуться естественной усушке после возведения бани.
- Готовый сухой брус, влажность которого обычно составляет 15%. Он отличается от первого материала тем, что показатель влажности в нем остается практически неизменным.
Масса бруса ограничивается обычно влажностью и типом древесины. Для бань в основном подходят хвойные породы деревьев и лиственница. Брус с сечением 100х100 может быть строганый или обрезной — это зависит от того, какой механической и технологической обработке он был подвергнут. Строганый брус с гладкой наружной поверхностью обладает эстетической составляющей. Брус данного размера бывает в виде массива, клееного бруса, профилированного распиленного материала и может иметь квадратное сечение.
Баня из бруса 100х100 предполагает возведение недорогой постройки. Брус с таким сечением — это оптимальный выбор. Самые недорогостоящие его виды могут быть использованы в качестве утепления конструкции и внутренней отделки. Для строительства самой бани целесообразно остановить выбор на профилированном и клееном материале.

Вариант двухэтажной бани из бруса.
Что касается цены, то в условиях рыночной экономики она имеет обыкновение варьироваться в определенных пределах. В этом вопросе лучше всего опираться на качество продукции, так как одинаковый материал может иметь отличную цену у разных производителей.
Возможно ли построить качественную баню с наименьшими затратами? В данном случае придется немного потрудиться и запастись терпением. Для этого нужно использовать профилированный брус, который не прошел принудительную обработку. Также можно воспользоваться проектом бани без мансарды. Брус с сечением 100х100, считается маленьким, поэтому он относительно недорогой, но при этом потребует больше усилий в процессе самого строительства.
Перед тем как приступить непосредственно к строительству, необходимо создать проект бани. Для этого следует учесть все нюансы, в том числе и природные климатические условия, месторасположение, характер грунта и рельеф местности. Во любом случае закладка фундамента и долговечность постройки напрямую зависят от этих моментов. Кроме того, нельзя забывать о наличии коммуникаций. Важно также обеспечить минимизацию расходов, связанных с отопительным процессом.
Источник: https://bani-iz-brusa.postroivsesam.info/novosti/banya-iz-brusa-3h4-svoimi-rukami-planirovka