Проект бани 3 н. Обустройство фундамента
- Проект бани 3 н. Обустройство фундамента
- Проект бани 3 н. Новые проекты бань. Чертежи и фото
- При проектировании бани следует учитывать многие нюансы:
- Виды бань
- Паровая сауна: русская баня (наша — родная:)
- Суховоздушная (финская) баня
- Паровая баня: турецкий хамам
- Водяная баня: японская баня офуро
- Влажная сауна: спортивная
- Основные помещения в бане
- Предбанник (раздевалка)
- Парная комната
- Моечная комната
- Проект бани 3 на 6 с террасой. Разработка плана бани с учетом условий дачного участка
- Баня 6 на 3 с туалетом. Разработка плана бани с учетом условий дачного участка
- Баня 3 н. Баня 3х8 из бруса (Б-84)
Проект бани 3 н. Обустройство фундамента
Рассматривая многочисленные проекты бань из бруса 6х3 метра, несложно понять, что благодаря небольшим размерам и малому удельному весу древесины, общий вес всей конструкции окажется несущественным, поэтому для ее установки можно использовать легкий и недорогой в изготовлении столбчатый фундамент.
- На месте будущей постройки снять плодородный слой грунта на глубину 250-300 мм, после чего отсыпать песчаную подушку, периодически смачивая и тщательно утрамбовывая засыпаемый песок;

Обустройство столбчатого фундамента из бетонных блоков.
- Выполнить разметку подготовленной территории, после чего по углам и по периметру несущих стен своими руками установить опорные столбы из монолитного армированного бетона или кирпичной кладки с шагом 1000-1500 мм между ними;
- При помощи строительного гидроуровня выровнять все столбы так, чтобы их верхние торцы располагались в одной горизонтальной плоскости, используя при необходимости подсыпку или удаление лишнего слоя песка;
- После окончательной установки выполнить гидроизоляцию фундамента, обернув каждый столбик со всех сторон двумя слоями рубероида с использованием разогретой битумной мастики для дерева .

На фото показана схема столбчатого фундамента.
Совет!
Перед обустройством столбчатого фундамента нужно заранее позаботиться об укладке системы для сбора и отвода сточных вод, которая должна начинаться в парном и помывочном помещении бани, а заканчиваться в приемном коллекторе автономного очистного сооружения.
Проект бани 3 н. Новые проекты бань. Чертежи и фото
Самый лучший отдых — это отдых на даче или в загородном доме. Особенно если в этот отдых включено такое наслаждение для тела, как баня. Проектируя проект бани, важно учесть множество моментов. Это выбор места расположения бани, стройматериалов, вопрос, как провести внутренние отделочные работы, как установить печь, и другие нюансы. В этой статье мы собрали для вас полезную информацию, которая станет нужной на этапе принятия решения. С ее помощью вы определитесь с тем, как обустроить свое лучшее место для релакса.

При проектировании бани следует учитывать многие нюансы:
- расположение на участке (будет ли она отдельным зданием или выступает как пристройка к дому);
- мощность обогревателя;
- сколько будет посетителей максимум;
- толщина стен, отделка, наличие или отсутствие утеплителя.
- вопрос экономии на этапе проектировки и строительстве бани.

Виды бань
Многообразие бань возникает от разницы культур и традиций. Благодаря этому изобилию вариантов мы можем выбрать тот микроклимат в бане, который оптимально подойдет нам по температуре, влажности и выработке пара.
Важен для самочувствия и микроклимат, и в соответствии с ним бани подразделяются на такие виды.
Паровая сауна: русская баня (наша — родная:)
45-70° по температуре и невысокая влажность – 40-65%. Пар конденсируется на коже, образуя своеобразную пленку, а организм нагревается намного сильнее вследствие теплопроводности воды.
Суховоздушная (финская) баня
Небольшая влажность, 8-20%, сочетается с высокой температурой 70-110°. Отсутствие пара и высокая температура способствуют максимальному прогреванию организма;
Паровая баня: турецкий хамам
В такой бане температура достигает 40-45°, влажность 90-100%. За счет такой невысокой температуры создается мягкий микроклимат. В бане можно не только хорошо отдохнуть, но и заняться собой, порадовав тело косметическими процедурами.
Водяная баня: японская баня офуро
Традиционная баня с температурой 40-60° и влажностью 100%, является экзотической разновидностью бани. Это обычно деревянная бочка, которая подогревается. Прогревание кожи под водой способствует потоотделению и вымыванию шлаков и пота.
Влажная сауна: спортивная
Температура 75-95° при 100% влажности. Является одним из подвидов финской бани. Температура специально повышается за счет полива камней водой. Такая сауна становится местом соревнований на выносливость и представляет для организма вред и даже опасность.
В банях также различается способ нагрева и нагнетания пара. Зная эти особенности, вы выберете баню с характеристиками, которые максимально устроят вас и вашу семью.

Основные помещения в бане
Каждый тип бани включает такие функциональные помещения:
предбанник (раздевалка);
парная;
моечное помещение;
комната отдыха.

Предбанник (раздевалка)
Здесь посетители оставляют свою одежду, здесь хранятся веники и дрова. Предбанник выполняет ряд функций:
- является зоной с функцией буфера, выравнивающей переход температур от климата снаружи до температуры внутри бани;
- служит местом для досушивания дров;
- зачастую служит также комнатой, в которой отдыхают.
- Дверь предбанника должна открываться наружу.



Парная комната
Эта комната является основным помещением постройки. Здесь поддерживается высокая температура и размещается печь. В углу парной находятся камни, с помощью которых создается пар. Под ними должно находиться жароустойчивое покрытие.
Здесь же находятся лавки, размещенные ступеньками. Две, как правило, предназначаются для сидения, одна или так-же две – для лежания. Обустраивая парную комнату, необходимо продумать такие нюансы:
- Материалы, которыми обшиваются потолок и стены, характер теплоизоляционных свойств — с их учетом рассчитывается глубина теплоизоляции комнат, используются конструктивные приемы;
- эффективная работа системы вентиляции — обеспечивается специальным коробом или распахивающимся окном, имеющим двойное остекление. Расположение окна – напротив печки;
- дверной проем — проектируется с повышенным порогом: так под дверь не проходит прохладный воздух и не снижается теплоэффективность. Сама дверь распахивается наружу;
- парное и моечное помещения — разделяются, иначе снижается качественные показатели пара и температуры, увеличивается расход топлива.


Моечная комната
Моечная комната -это душевая кабинка, размещается возле парной. Если размеры строения позволяют, эти зоны являются отдельными друг от друга, в маленьких постройках совмещены. В крупных строениях здесь же оборудуется бассейн или купель.
Средняя площадь моечного помещения составляет 2000х2000мм, тогда есть где принимать водные процедуры и размещать емкости с водой, горячей и холодной.
Окно строится в полтора раза больше окна в парной. Увеличен и дверной проем – 1800х800мм, чтобы обеспечить больший комфорт. По сохранению тепла требования меньше, чем в парной. Порог делается высокий, а пол укладывается из специальной плитки во избежание скольжения и сопутствующих травм.

Проект бани 3 на 6 с террасой. Разработка плана бани с учетом условий дачного участка
Чтобы создать идеальные условия для отдыха в бане, нужно учитывать некоторые нюансы, которые позволят избежать неприятностей в процессе эксплуатации помещения. Желательно, чтобы зона строительства располагалась на почвах с низким уровнем пролегания грунтовых вод. Перед тем как приступить к разработке проекта, нужно сразу же исключить все участки, которые не соответствуют этому условию.
Если на территории имеется колодец, то расстояние между ним и баней не должно быть менее 5 м. Минимальный разрыв между парилкой и жилым зданием составляет 8 м. Чем дальше от бани будет размещаться компостная яма и туалет, тем лучше. Специалисты советуют делать вход с южной стороны. В зимнее время здесь образуется меньше сугробов, поэтому исключается вероятность блокировки доступа к двери. Лучше, если окна будут смотреть на запад, что будет способствовать проникновению в помещение достаточного количества солнечного света.
Если на дачном участке имеется водоем, построив баню в 15-20 м от него, можно использовать его вместо бассейна. Кроме этого, наличие реки или озера поблизости от сооружения позволит обеспечить систему подачи воды.
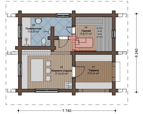
Проект бани размером 7,74 на 6,24 метра
Для небольших участков (3-6 соток) подойдут проекты бань 3 на 3, фото таких построек в изобилии присутствуют на сайтах строительных компаний. Даже в таких компактных строениях основным помещением остается парная. Под организацию этой комнаты следует отвести максимально возможное количество площади – около 8 м². Этого достаточно для того, чтобы установить 2-3 лежака (полки) и поставить печь-каменку.
Другие помещения могут быть включены в планировку бани 3х4 м и более (по желанию). Сооружение может использоваться по назначению даже при отсутствии бильярдной или санузла. Баня же без парилки существовать не может. По этой причине разделение внутреннего пространства на функциональные зоны в первую очередь зависит от размеров проекта.
Строить бани рекомендуется на расстоянии минимум 8 м от жилого сооружения
Если же хочется дополнительных удобств, в проект бани 3 на 4 м можно включить небольшую душевую комнату или помывочную. После парилки здесь можно будет смыть с себя грязь и освежиться. Для типовых проектов характерно наличие комнаты отдыха, которая будет эксплуатироваться в перерывах между сеансами пара. Для ее организации потребуется 4,5 м².
Нелишними будут и другие помещения, например, раздевалка или тамбур. Они достаточно компактны, чтобы поместиться в проекте бани 5 на 5 из бруса наряду с основными комнатами.
Баня 6 на 3 с туалетом. Разработка плана бани с учетом условий дачного участка
Чтобы создать идеальные условия для отдыха в бане, необходимо учесть некоторые нюансы, которые позволят избежать проблем при эксплуатации помещения. Желательно, чтобы зона строительства располагалась на суше с низким уровнем наличия грунтовых вод. Перед тем как приступить к разработке проекта, необходимо сразу исключить все участки, не соответствующие этому условию.

Проект сауны 5 х 7 метров с открытой террасой
Если на территории есть колодец, то расстояние между ним и баней должно быть не менее 5 м. Минимальное расстояние между парилкой и жилым домом — 8 м. Дальше от бани компостная яма и туалет расположены, тем лучше. Специалисты рекомендуют заходить с южной стороны. Зимой здесь образуется меньше сугробов, поэтому возможность перекрытия доступа к двери исключена. Лучше, если окна выходят на запад, что облегчит проникновение в комнату достаточного количества солнечного света.
Если на дачном участке есть водоем, то после постройки бани в 15-20 м от него можно использовать вместо бассейна. Кроме того, наличие реки или озера в непосредственной близости от объекта обеспечит систему водоснабжения.

Размеры проекта сауны 7,74 х 6,24 метра
Для небольших участков (3-6 соток) подходят проекты санузлов 3 на 3, фото таких построек в изобилии на сайтах строительных компаний. Даже в таких компактных постройках парная остается основным помещением. Для организации этого помещения следует выделить максимально возможный объем пространства — примерно 8 м². Этого достаточно, чтобы установить 2-3 грядки (полочки) и поставить печь.
Остальные комнаты могут быть включены в планировку санузла 3х4м и более (по желанию). Конструкцию можно использовать по прямому назначению даже при отсутствии бильярдной или санузла. Баня не может существовать без турецкой бани. По этой причине разделение внутреннего пространства на функциональные зоны во многом зависит от масштабов проекта.

Сауны рекомендуется строить на расстоянии не менее 8 м от жилого дома
Если вам нужны дополнительные удобства, вы можете включить небольшую душевую или ванну в дизайн своей ванны размером 3 на 4 метра. После турецкой бани здесь можно смыть грязь и остыть. Типичные проекты характеризуются наличием комнаты отдыха, которая будет обслуживаться в перерывах между парными сеансами. Для его организации потребуется 4,5 м².
Пригодятся и другие помещения, например, гардеробная или тамбур. Они достаточно компактны, чтобы вместить бревенчатую сауну 5 на 5 вместе с основными помещениями.
Обратите внимание: размер купальной зоны на одного человека составляет 2 м².

Баня 3 н. Баня 3х8 из бруса (Б-84)
цена бани 3х8 под ключ
стоимость из бруса естественной влажности
Брус который не подвергался сушке
Брус 90х140 609 000 ₽
Брус 140х140 637 000 ₽
Брус 140х190 670 000 ₽
стоимость из бруса камерной сушки
Брус который имеет влажность не более 19%, что позволяет уменьшить риск трещин в бруса
Брус 90х140 706 000 ₽
Брус 140х140 739 000 ₽
Брус 140х190 777 000 ₽
Расчитаем стоимость проекта и перезвоним
Базовая комплектация под ключ
| Фундамент | Опорно столбчатый из блоков 200х400х200 мм по четыре блока в каждой тумбе. Количество тумб зависит от размеров бани. Стоимость свайного фундамента рассчитывается отдельно. |
| Силовая конструкция | |
| Основание (обвязка) | Обвязка - 2 нижних венца из нестроганного бруса. Толщина сечения согласно выбранной толщины наружных стен (100х150 мм, 150х150 мм или 200х150 мм). |
| Половые лаги | Обрезной брус 50х150 мм с шагом не более 600 мм. |
| Черновой пол | Обрезная доска 1-го сорта 22х100 мм естественной влажности, укладывается на брусок 40х50 мм, прибитый к лагам. |
| Наружные стены | Профилированный брус 90х140, 140х140 или 190х140 мм. Форма сечения на выбор: прямоугольная или закругленная с внешней стороны. |
| Сборка сруба | Между венцами проф. бруса прокладывается льноджутовый утеплитель. Сборка осуществляется на металлические нагеля (гвозди 200 мм). В качестве дополнительной услуги - сборка на берёзовые нагеля. |
| Стыковка угловых соединений | Рубка наружных стен и внутренних перегородок осуществляется в "тёплый угол" (шип-паз). Акция: БЕСПЛАТНО! |
| Перегородки | Прямой профилированный брус из древесины хвойных пород естественной влажности 90х140 мм. |
| Высота потолков | 2.2 м (16 венцов), высота конька: 1.5 м. |
| Потолочные балки | Нестроганная доска естественной влажности 40х100 мм с шагом не более 900 мм. |
| Отделка и утепление | |
| Чистовой пол | Сухая шпунтованная доска 36 мм. |
| Утепление | Пол и потолок утепляется минеральной ватой Knauf 50 мм. Доп. услуга - увеличение толщины. |
| Мембраны | С обеих сторон утеплителя (пол, потолок) протягивается изоляционные мембраны Isospan или аналог. С внешней стороны - ветроизоляция. С внутренней стороны - пароизоляция. |
| Отделка парной | По всему периметру парной (потолок, стены) прокладывается алюминиевая фольга. Подшивается сухой осиновой вагонкой. |
| Двери в парную | Монтируется клиновая осиновая дверь камерной сушки. |
| Полки в парной | Монтируются двухъярусные осиновые пологи камерной сушки. |
| Потолок | По потолочным балкам прокладывается пароизоляционная пленка "Изоспан Б". Потолок подшивается сухой вагонкой 14 мм класса "В". Утепляется минеральной ватой "Knauf" в 50 мм. Монтируется ветроизоляция "Изоспан Б" |
| Окна | Деревянные зимние окна двойного остекления из сосны, толщиной бруска 46 мм. Два стекла через деревянную планку 3х10х3 мм. Стекла герметично просиликонены. Фурнитура поворотная. В комплекте ручки. Размеры и количество - согласно проекту. |
| Двери межкомнатные | Деревянные филенчатые из сосны без фурнитуры. |
| Дверь входная | Деревянная филенчатая (если общая стоимость бани от 590 000 рублей - ставим металлическую дверь). Монтируются обсадные бруски. |
| Плинтус и обналичка | Все углы дома закрываются сухим деревянным плинтусом. Оконные и дверные проемы обносятся наличником. |
| Крыша и кровля | |
| Стропила | Нестроганная доска естественной влажности 40х100 мм с шагом не более 900 мм. |
| Обрешётка крыши | Одинарная, из обрезной доски естественной влажности 22 мм. |
| Крыша и кровля | Крыша двускатная. Высота конька - 1.5 - 1.8 м (согласно проекту). Кровельный материал - ондулин (красный, коричневый или зеленый). Прокладывается ветроизоляционная мембрана "Изоспан А". |
| Внешние фронтоны и поднебесники | Фронтоны каркасные с прокладкой ветрозащитной мембраны "Изоспан А". Снаружи обшиваются вагонкой 14 мм класса "В" естественной влажности. Поднебесники по скату и по фронтону шириной 270 мм. |
| Дополнительно | |
| Банная печь | В базовую комплектацию не входит, заказывается отдельно. Возможные варианты: Ермак-12, Ермак-16, Ермак-20. |
| Оконные и дверные проёмы | Во все оконные и дверные проёмы впиливаются обсадные бруски "ройки" для минимизации негативных последствий усадки. Акция: БЕСПЛАТНО! |
| Компенсаторы усадки | В опоры столбов устанавливаются металлические винтовые компенсаторы усадки. Акция: БЕСПЛАТНО! |
| Душевой поддон | Монтируется пластиковый поддон для душа. Выводится гофрированная труба на улицу для слива воды. Акция: БЕСПЛАТНО! |
| Ступени | Монтируются деревянные ступени при входе. |
Дополнительные опции к проекту
| Увеличить высоту бани на один венец | 16 000 ₽ |
| Строительство перегородок из бруса | 22 000 ₽ |
| Установка трубы-сэндвич через крышу | 8 000 ₽ |
| Комплект труб-сэндвич | 14 000 ₽ |
| Замена половой доски на шпунтовую толщиной 36 мм. | 16 000 ₽ |
| Металлическая входная дверь (производство - Китай) | 7 000 ₽ |
| Утепление бани до 100 мм. | 14 000 ₽ |
| Теплый угол (БЕСПЛАТНО) | 32 000 ₽ |
| Сборка бани на деревянные нагеля | 32 000 ₽ |
| Облицовка печи кирпичом | 10 000 ₽ |
| Строительная бытовка 3х2 м. | |