Проект бани 3 на 6 с мансардой. Особенности и преимущества
- Проект бани 3 на 6 с мансардой. Особенности и преимущества
- Баня с мансардой. Особенности
- Проекты каркасных бань для дачи. Каркасная баня своими руками | Проекты и пошаговое описание изготовления саун и бань (185 фото)
- Каркасная баня 6 н. Обзор типовых планировок
- Проект каркасной бани с террасой. Проектируем самостоятельно: современные типы бань
Проект бани 3 на 6 с мансардой. Особенности и преимущества
Выбор плана бани, конечно же, зависит и от размера участка, размещения построек и грядок на нем, и от того, будет ли она компактной, рассчитанной на одного человека или же на всю семью. Наиболее комфортны и распространены сегодня бани площадью 3x6 кв. м, которые могут быть не только одноэтажными, но и с мансардным этажом. Мансарда представляет собой то пространство, которое используют для расширения полезной площади за счет кровельных конструкций. Такой проект позволит обустроить дополнительные:
- комнату для комфортного времяпрепровождения;
- спортивный мини-зал;
- кухню;




Кроме всего прочего, хозяин такой бани получает ряд существенных достоинств:
- Подобная планировка позволяет разместить практически все удобства под одной крышей, что особенно хорошо для ненастной погоды. Однако не забывайте, что мансарда требует отдельной теплоизоляции для комфортного отдыха в любое время года.
- В связи с практичным расположением комнат на втором ярусе, значительно увеличивается и площадь первого уровня с парной и душем.


- Перемещение дополнительного жилого пространства на второй этаж позволит избежать чрезмерных трат на фундамент постройки.
- Важным фактором при выборе бани площадью 3x6 кв. м является длина стандартного профилированного бруса, которая составляет 6 м, что минимизирует количество отходов при строительстве такого помещения.
- Строительство бани с верандой даёт возможность не сооружать беседку.

Таким образом, мы плавно подошли к вопросу об оптимальном выборе материалов для строительства бани.


Баня с мансардой. Особенности
Исключительность мансардных бань подразумевает полноценную реализацию разнообразных конструктивных решений. Подбирайте вариант дома-бани с учетом характерных черт. Для любителей проектирования различных вариаций строений баня с мансардой будет отличным способом реализации собственных идей. Одной из главных надстроечных конструкций мансарды является лестница. Подъем на мансарду в бане потребует ее наличия.


Следует тщательно разобрать противовесные моменты с учетом аргументов за и против. Только после учета основных характеристик личного банного сооружения допускается рассмотрение вопросов проектирования. Еще одной конструкционной особенностью бань с мансардой является конструкция кровли. Важно учесть ограниченность мансарды. Чтобы этот этаж был полезным, чаще применяют кровлю ломаной двускатной конструкции.

Нежелательна односкатная кровля, тип традиционного двускатного варианта также нельзя назвать самым удобным. Нередко используют шатровые кровельные конструкции. С геометрическими параметрами более или менее ясно. Подберите вариант подъема на мансарду с учетом того или иного варианта кровли. Например, самыми действенными считаются варианты маршевого вида, но их сложно монтировать на малых площадях. Особенно плохо адаптируются маршевые устройства к конструкции бань 4х4 м.


Больцевые лестницы снабжены достоинствами маршевых устройств. Такие системы нельзя применять к каркасным сооружениям, так как для них требуется прочная несущая опора. К стене крепят ступени. Если баня выполнена из других материалов, устройство вполне приемлемо для использования.


Устройства винтового типа не отличаются удобством, но они эффективные в плане экономии пространства. Зачастую они становятся палочкой-выручалочкой в проекте мансардной бани 4х4 или 5х5 м.
Лучший вариант проекта с верандой, террасой и мансардой предполагает размещение комнат в следующем порядке:
- первый этаж;
- парилка;
- душевая кабина или помывочная;
- тамбур;
- маленькая веранда.


Веранду часто используют в качестве обеденной зоны, заполняя лавками, стульями, столами. Это пространство обычно открытое, поэтому создается атмосфера простой природной красоты. Однако верандой иногда жертвуют в счет увеличения внутренней площади бани. На площади мансарды допускается обустройство спального места, игровой комнаты (например, бильярдной), кладовой. Если мансарда является кладовой, место отдыха целесообразней оборудовать и внизу. Для комфорта на мансарде должна быть предусмотрена общая высота помещения от 2,5 метров.

Проекты каркасных бань для дачи. Каркасная баня своими руками | Проекты и пошаговое описание изготовления саун и бань (185 фото)
Баня – отличный способ расслабиться и отдохнуть после сложной и напряженной недели. Культура банного дела в России получила свое распространение много веков назад и пользуется большой популярностью и по сей день. Построить баню на загородном участке не так уж сложно, но выбрать способ строительства и определиться какой она будет, а также вникнуть во все нюансы строительства – не самое быстрое дело.

Разберем самую популярную типовую конструкцию или каркасную баню. Это оптимальное решение для любителей попариться, но ценителей семейного кошелька. Для этого нужно всего лишь немного разобраться в предмете и определить размеры.
Следование инструкции поможет сделать все правильно и не совершать ошибок. Как сделать каркасную баню своими руками? Распространённый вопрос на просторах интернета.

И если для вас это первый опыт строительства, может показаться что задача сложная и не посильная, однако, каркасные бани своими руками легко строить, следуя инструкциям и советам. Результат превзойдет все ожидания!

Положительные и отрицательные стороны каркасной бани
Как у любого здания, у каркасной бани есть свои сильные и слабы стороны.

Недостатки
- Такая баня может давать усадку, это проявляется не сразу, а постепенно;
- Если баня нужна больше чем на самые жаркие летние дни, то ее нужно будет утеплять. Утепление бани каркасного типа может повлечь дополнительную статью расходов для вашего бюджета;
- Отделка бани. Не стоит забывать, как о внутреннем убранстве вашей бани, так и внешней. Это также требует материальных вложений, а еще дополнительного времени на завершение всех работ;
- Уход. Каркасная баня требует заботы и внимания во время эксплуатации.

Достоинства
- Каркасная баня очень легка и не требует сложных подготовительных работ. Это позволяет сэкономить время и деньги на фундаменте;
- Каркасная баня хорошо удерживает теплый воздух;
- Такой тип конструкции очень выгоден финансово для бюджета семьи;
- Баня будет экологичной и не подверженной динамике колебания почвы после весеннего периода с активизацией грунтовых вод;
- Короткие сроки производства и установки бани.
Материалы
Для строительства бани стоит запастись необходимыми материалами, понадобятся:
- Бетон;
- Брус профилированный;
- Вагонка;
- Доска обыкновенная;
- Пароизоляция;
- Вата минеральная;
- Металлочерепица.

Инструменты
Также перед началом работ следует проверить наличие всех необходимых инструментов или взять недостающие образцы в аренду:
- Уровень обычный строительный;
- Дрель с различными насадками;
- Молоток;
- Отвертки разного сечения;
- Рулетка для измерения (хорошо если она будет инфокрасной);
- Пассатижи.

Пошаговая инструкция
Каркасная баня своими руками пошаговая инструкция – самый распространенный запрос поиска в интернете. Разберемся во всех действиях, необходимых на пути к бане своей мечты.

Определяем планировку будущей бани для этого нужно ознакомиться с проектами каркасной бани своими руками. В этом вопросе может быть миллион разнообразных решений.

Лучше всего подумать о функциональности будущей постройки. Если средства и площадь, отведенная под будущую баню позволяют, советуем рассмотреть варианты усложненной планировки. Здесь рассуждаем о веранде, месте для барбекю, гостевой комнате или полноценном дополнительном спальном месте. Все зависит от потребностей хозяев и их желанию.

Самый типичный вариант, искать пошаговую инструкцию для каркасной бани 3х4 своими руками. Этот размер самый типичный для маленьких и аккуратных бань без излишних помещений.

Определившись с размерами и пожеланиями, находим чертеж похожей бани в интернете и проверяем чтобы чертеж соответствовал желаемым размерам будущего строения. Делаем фундамент.

Фундамент
В этом этапе следует отдельного поговорить о всех шагах выполнения, потому что это не самое простое дело:
- Огораживаем периметр будущей бани колышками;
- Копаем ров с глубиной около полу метра;
- Ширина такого рва не должна быть уже чем 0,4 метра, обычно она определяется индивидуально исходя из параметров всей постройки;
- Засыпаем песком одну треть всей глубины. Залив водой, утрамбовываем мокрый песок;
Стены для бани
- Покупаем пиломатериалы и удостоверимся что они сухие и качественные. Для таких работ лучше всего выбирать определенные сорта дерева. В фаворитах – липа и сосна. Эти породы дерева отлично сохраняют тепло.
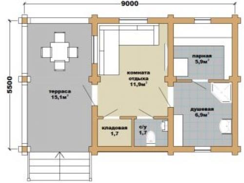
Каркасная баня 6 н. Обзор типовых планировок
Любое строительство начинается с разработки проекта. Необходимо составить подробный план и чертеж с указанием количества комнат, дверей и окон. А также рекомендуется сразу указывать размеры комнат, дверных, оконных проемов и банной мебели.
Обязательной является схема зарисовки проводки и иных коммуникаций.

Далее определяемся с материалом, из которого планируется строить баню 6х9 м. Лидерами строительства являются проекты из бревна. При наличии многих других материалов (каркасные, из арболита) банный комплекс из дерева – классика жанра: здесь идеальная атмосфера, эстетика. Неплохим вариантом является сруб из бруса 6 на 9. Дерево дает небольшую усадку и хорошо сохраняет тепло.
Даже одноэтажная баня такого размера будет выглядеть довольно просторно. Кроме основных процедурных помещений, можно планировать все что угодно. Советуем остановиться на проекте с тамбуром: здесь будет удобно хранить обувь, верхнюю одежду. Кроме этого, тамбур защитит основное помещение от холода.


Есть проекты, где отведено место под санузел. Это вполне обоснованно: места много не займет, но с туалетом решаются некоторые сложности, а отдых становится комфортным, особенно зимой.


Стоит обратить внимание на бани с террасой.
Ее можно сделать небольшой, запланировав место для стола и стульев.


Если принято решение возводить двухэтажное строение, то второй этаж можно отдать под полноценный гостевой домик со спальнями, балконом.

Предлагаем несколько рекомендаций по разработке проекта бани 6х9 м:
зону строительства планируйте на территории с низким залеганием вод;
располагайте банный комплекс подальше от колодца, скважины с питьевой водой, компостной ямы, туалета;
удобно планировать постройку рядом с водоемом – легко организовать подачу воды.
Проект каркасной бани с террасой. Проектируем самостоятельно: современные типы бань
Готовую проектную документацию бани из бруса с мансардой или любой другой можно приобрести в специальных бюро или выполнить самостоятельно. Во втором случае в помощь придет любой типовой проект для выбранного размера строения.
Перед началом проектирования бани на основе каркаса решаются ключевые вопросы:
- найти самое рациональное месторасположение здания, с учетом удобства и простоты для подведения водо-канализационных, осветительных коммуникаций;
- спланировать размеры будущего здания;
- на выбранном месте, изучить состав почвы и перепады поверхности грунта. Эти факторы станут решающими в выборе типа фундамента;
- решить необходимость возведения 2-х этажей, мансарды и постройку внешних элементов, таких как веранда , терраса;
- определить тип крыши. Рассматриваются варианты односкатной, двускатной, многоскатной конструкции.
При выборе количества скатов крыши, учитывается размеры бани, климатические особенности местности, расстояние до других построек, тип покрытия.
Готовый проект станет помощником в рациональном распределении пространств, выборе строительных материалов . Определиться с предпочтениями помогут и фото бань.
Предварительно продумать внутреннюю планировку бани с точки зрения функциональности. Определить место установки печки. От него зависит, как будут располагаться дымоходы и вентиляция.
На этапе проектирования решается вопрос выбора материалов, из которых будет возводиться строение и обсчитывается примерная стоимость строительства. Ч ем более подробно разработан проект каркасной бани своими руками, тем легче вносить в него коррективы при возникновении непредвиденных обстоятельств.
Вариант 4*5 м
Строение размером в 20 м2 компактно, подходит для бани состоящей из трех помещений:
- комнаты для отдыха;
- парилки;
- санитарного помещения с унитазом и душем.
При определении размеров внутренних помещений расчет делается не для «чистого» размера, а с учетом толщины перегородок и стен.
Наиболее подходящая площадь для комнаты отдыха 7-8,5 м2, для парной – до 5 м2, для санузла – не менее 2,2 м2. Небольшие размеры строения не предполагают предбанника. В парной располагается каменка и вся основная поверхность печи. В комнату отдыха выносится топка, играющая роль еще и отопительного прибора . Чтобы в баню с улицы не попадал холодный воздух, необходимо предусмотреть наличие закрытого крыльца.
Расходные материалы и элементы бани 4*5 м:
- Фундамент ленточный заглубленный на 70 см и высотой цоколя 40 см. Для его обустройства требуется подушка из гравия толщиной до 20 см.
- Каркас состоит из стоек и обвязки по верхнему и нижнему краю строения. Оптимально использовать доски 100*50 мм.
- Крыша двускатная со стропильной системой из доски 150*50 мм. Шаг укладки 580 мм.
Обшивка выбирается в зависимости от требуемого уровня теплоизоляции.
Вариант 6*6 м с верандой, балконом
Размер 6*6 м дает пространство для фантазии. В проект такой бани можно включить такие помещения:
- террасу или тамбур;
- комнату отдыха и спальную;
- парилку;
- полноценный санузел;
- моечную.
Линейные размеры предполагают использование пиломатериалов стандартной длины, что удешевляет строительство из-за малого количества отходов.
Моечную комнату можно сделать предельно большой с прямым выходом из парилки и в ней разместить лежаки для отдыха. В другом варианте проекта предполагается разделить моечную и парную небольшим коридором соединенным с комнатой отдыха. В этом случае в комната для мытья будет несколько меньше.
Вариант 6*3 м: дизайн с террасой
Проект бани 6*3 м с террасой встречается в двух вариантах:
- Терраса не входит в площадь строения и ей размер планируется отдельно. В этом случае общий размер здания увеличится на площадь веранды.
- Терраса является частью общего здания. Тогда все внутренние помещения будут иметь меньший размер.
Небольшие размеры бани не позволят обустроить полноценный санузел. Печь будет топиться из комнаты для отдыха.
Выбрать печь компактную, возможно модель будет узкая и вытянутая вверх.
Вынос террасы за фундамент основного строения позволит выделить небольшое пространство от комнаты отдыха для тамбура . Тогда возможно попариться и в зимнее время. Примерные размеры внутренних помещений:
- комната-парилка – 3,5 м2;
- душевая/моечная – 1,8 м2;
- комната релакса – 8,5 м2;
- тамбур – 2,6 м2;
- выносная терраса – 11 м2.
Для формирования каркаса понадобится брус 100*150 мм. Их него делается обвязка и устанавливаются лаги пола. Для крыши используют брус 150*40 мм для потолочного перекрытия. Стропильная система укладывается из обрезной доски. Для этого подходит доска с размером 100*50 мм. Материал для обшивки и кровли выбирается в зависимости от личных предпочтений и климатических условий.
Вариант 4*4 м с террасой
Такой размер строения предполагает только выносную, пристроенную террасу , но под общей крышей и на общем фундаменте.
Площадь 4*4 м подход больше для сухих саун. Для русских бань не самый комфортный вариант.