Срубы бань из рубленого бревна и бруса. Какая баня лучше, из бруса или бревна? Сравним характеристики
- Срубы бань из рубленого бревна и бруса. Какая баня лучше, из бруса или бревна? Сравним характеристики
 - Проект бани 4х5 из бревна. Что может включать такой проект
 - Проекты бань из бревна 6х6. Преимущества рубленых бань
 - Срубы бань из бруса. Можно ли строить баню?
 - Бани из дикого сруба. Дикий сруб
 - Баня со сруба под ключ. Преимущества срубов бань из бревна
 - Баня из бревна 6х6 с мансардой. Сруб с мансардой
 
Срубы бань из рубленого бревна и бруса. Какая баня лучше, из бруса или бревна? Сравним характеристики
Тем не менее, в некоторых аспектах свойства бруса могут существенно опережать свойства бревна, и наоборот.
Основное различие бруса и бревна — профиль сечения . Брус имеет геометрически правильные плоскости, позволяющие плотное соединение и аккуратный внешний вид. В то же время, бревно, за счёт сохранения структуры слоёв ствола дерева, имеет большую прочность и меньше подвержено растрескиванию и короблению.
Достоинства бруса:
- Наличие ровных плоскостей, допускающих плотную и аккуратную укладку.
 - Меньший, чем у бревна, вес, и, как следствие, возможность работы малочисленной бригады.
 - Имеется большой выбор видов бруса, позволяющий применить разные варианты при строительстве.
 
Достоинства бревна:
- Прочность.
 - Малое коробление и растрескивание.
 - Малая гигроскопичность, бревно впитывает влагу из атмосферы гораздо меньше, чем пиломатериалы с открытыми годовыми слоями.
 - Аутентичный внешний вид, соответствие традиции.
 
Вместе с достоинствами, материалы имеют и свои недостатки.
Недостатки бруса:
- Сильное растрескивание, иногда брус лопается насквозь.
 - Подверженность гигроскопичности, ведущая к образованию щелей.
 - Большая необходимость в гидроизоляции и антисептическом покрытии.
 
Полезное
В данном ролике речь идет о доме из бруса, но тем не менее, он позволяет увидеть недостатки брусового строительства:
Недостатки бревна:

- Коническая форма.
 - Неодинаковость размеров брёвен сруба.
 - Необходимость пазования брёвен, что повышает трудоёмкость и отнимает много времени.
 - Большой вес, необходимость наличия техники или многочисленной бригады.
 
Таблица сравнения характеристик бревна и бруса
| Характеристики | Брус | Бревно | 
| Особенности | Качественная поверхность ровной геометрии, наличие плоскостей | Цилиндрическая форма, нуждается в создании паза. | 
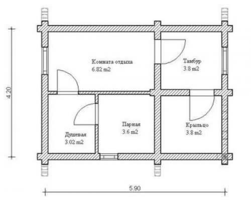
Проект бани 4х5 из бревна. Что может включать такой проект

Еще одно удобное решение
Подобная баня становится идеалом уже потому, что позволяет не объединять помещения, которые желательно выполнять раздельно, в ней не будет тесноты, если мыться будет 4-5 человек. В ней можно выделить место даже для дополнительных помещений, в особенности, если проект каркасной бани 5х4, выбранный Вами, предполагает наличие второго этажа.
А помещения в бане могут быть следующими:
- Предбанник и раздевалка ,
 - Парилка и моечная,
 - Комната отдыха,
 - Чердак.
 
Еще вариант
Когда в бане имеются все эти отдельные помещения – это замечательно, поскольку каждое из них играет свою важную роль, вплоть до чердака, на котором как минимум можно заготавливать веники. Таким образом, проект бани 4х5 из бревна или иного материала предусматривает буквально все. Вы можете посмотреть фото, чтобы убедиться в этом.
Как правильно выбрать?
В целом, проекты бань 5 на 4 на 5 представлены достаточно широко – ведь спрос порождает предложения. И порой у людей, которые собираются возвести баню такого типа своими руками, сталкиваются с проблемой выбора подходящего варианта.
В совершении такого выбора главную роль должна играть не только цена, но и ряд других параметров.
Итак, решите:
- Из какого материала Вы будете возводить этот объект?
 - Будет ли в бане только парилка, или будут и другие помещения, в частности, купель?
 - Какие именно помещения Вы хотите видеть, и сколько их должно быть?
 
Определившись с этими вопросами, рассмотрите те проекты бани 4х5, которые удовлетворяют Вашим требованиям. Но это не значит, что Вы обязаны выбрать один из них – при необходимости можно внести в любой проект коррективы, ли заказать у специалистов создание индивидуального варианта по Вашим требованиям.
Проекты бань из бревна 6х6. Преимущества рубленых бань
Бани из бревна 6 на 6 на 6 на 6 можно считать идеальным решением для дома. С одной стороны, такие габариты позволят разместить в постройке и парилку, и предусмотреть возможность просто помыться, тесно не будет точно. С другой – на строительство не пойдет много кругляка, да и времени возведение бани займет немного.
К тому же бревенчатые бани обладают рядом преимуществ по сравнению с кирпичными или строениями из бетонных блоков:
- дерево пропускается воздух и влагу , а значит проблем с сыростью не будет;
 
Обратите внимание!
При выполнении работ своими руками нужно осторожно подходить к вопросу обработки древесины.
Если обработать бревна пропиткой, образующей на поверхности воздухонепроницаемый слой, то «дышать» такая стена точно не будет.
- дерево обладает плохой теплопроводностью по сравнению с кирпичом или бетоном. Раз потери тепла будут меньше, то уменьшатся и затраты энергии на поддержание нужной температуры в бане;
 

Сравнение теплопроводности дерева и других материалов
- что касается долговечности, то даже при отсутствии обработки бревен баня может простоять не одно десятилетие ;
 
Обратите внимание!
В вопросе долговечности многое зависит от типа использованного кругляка.
Например, баня из оцилиндрованного бревна 6 на 6 м будет менее долговечна, чем аналог из окоренных бревен.
Причина заключается в особенностях обработки бревен – при калибровке срезается кора с толстым слоем древесины, а вот в случае с окоренными бревнами удаляется только кора.

Оцилиндрованные бревна
- при использовании смолистой древесины в помещении всегда будет приятный аромат , в кирпичных строениях такого эффекта не достичь. Правда, учитывая температурный режим, не рекомендуется использовать древесину с высоким содержанием смолы, иначе стены все время будут липкими.
 
Что касается недостатков, то их практически нет, к тому же часть из них связана с выбором некачественного материала для строительства:
- иногда можно встретить упоминания о том, бревна быстро гниют, но это не совсем верно. Если сруб бани 6х6 из бревна быстро пришел в негодность, то, скорее всего, просто кругляк был выбран сырой, если затем выполнялась их двусторонняя пропитка, то получили эффект гниения изнутри;
 - работа требует достаточно серьезной квалификации, так что в большинстве случае придется нанимать специалисты в этой области, в результате цена постройки вырастет, причем стоимость услуг специалиста гарантированно не будет маленькой.
 

Срубы бань из бруса. Можно ли строить баню?
Такую баню можно и нужно строить, поскольку при тех же потребительских характеристиках она выходит дешевле, а процесс возведения «под ключ» завершается в самые короткие сроки .
Это объясняется простотой укладкой, что обеспечивает высокую скорость работ, а также низкой естественной усушкой бруса.
Плотность прилегания элементов друг другу обеспечивается ровностью их сторон . Такие стены толщиной 250 мм практически не требуют дополнительного утепления, а процесс конопатки при этом минимальный. Красота бруса создает неповторимый дизайн бани и не требует дополнительной отделки.
Легкие стеновые конструкции не создают давление на фундамент, поэтому можно выбрать простейший столбовой фундамент из бетонных блоков, поставленные друг на друга с требуемой высотой.
Тем не менее застройщик бани из бруса должен представлять, что его ожидает в будущем при ее эксплуатации. Из-за резких перепадов температур, под воздействием горячего банного воздуха постепенно будет разрушаться древесная структура , с образованием микротрещин.
Важно ! Опасна сырость и образование плесени и грибка, которые разрушительно действуют на материал. Для того чтобы избежать этих негативных явлений хозяин бани должен быть готов к обслуживанию брусовых стен с его антисептической обработкой, а также созданием надежной системы вентиляции и водоотвода, чтобы не создавать влажный режим в помещении.
Какие виды древесины подойдут?
Перед тем, как строить, застройщик должен знать особенности конструкций стенок разных модификаций :
-  Непрофилированный — изготавливается из бревен на которых выполняют огранку после удаление кантов. При этом сохраняются все преимущества и недостатки дерева. Преимущества не профилированного бруса: низкая себестоимость производства 1 м3пиломатериала; высочайшие экологические показатели изделия; хорошо представлен на рынке и может быть изготовлен под индивидуальные проекты.
К недостаткам относят необходимость выбраковки материалов; возможные очаги биоповреждения; усадка конструкции до 6 см в первый год.
 -  Профилированный улучшенная модификация не профилированного бруса с калиброванными венцовыми элементами для точной и прочной сборки.
Такая модификация сегодня наиболее популярная у застройщиков, в связи с тем, что обладает существенными преимуществами: меньше дает усадку бани в первый год строительства, не более 3 см.
Также соединения шип-паз гарантируют высочайшую прочность стеновых конструкций и соблюдение её проектных характеристик; теплостойкость стены, обеспечено высококачественными сопряжениями венцов, не допускающих создание мостиков холода, проникновение влаги продувание либо попадание осадков; хорошая биологическая и огнестойкость.
К недостаткам относят высокую цену за 1 м3бруса, возможность через полгода появления незначительного количества трещин.
 -  Клееный , изделия получается при склеивании отдельных тщательно высушенных и отобранных заготовок — ламелей с процентом влажности не выше 12%. В результате получаются высокопрочные композитные изделия, превышающих по показателям исходное дерево.
К преимуществам данной модификации застройщики относят: четкие геометрические поверхности, сокращающие время укладки и необходимость последующей отделки; небольшая усадка стен не выше 2 см, устойчивость к биоповреждению.
К недостаткам относят высокую цену и низкую экологичность из-за применения клеевого состава. Последний недостаток не существенный, при покупке высококачественного клееного бруса с сертификатом соответствия на экологическую безопасность.
 
Бани из дикого сруба. Дикий сруб
 Архитектурный стиль «дикий сруб» это одно из самых древних направлений в строительстве. Первые избы на Руси выглядели именно так — срубы из крупных бревен разной длины, с сучками, из бревен, практически не подвергавшихся обработке. Воплотить этот стиль сегодня возможно лишь, применяя технологию ручной рубки. Благодаря ей, можно подготовить каждое бревно по-отдельности: выбрать любой диаметр, вплоть до 50 см, текстуру, плотность, цвет древесины. 
Всё новое — это хорошо забытое старое. Так и срубы в диком стиле получили вторую жизнь, и сегодня пользуются большой популярностью в строительстве загородных домов. Чаще всего такие коттеджи рубятся методом “канадская чаша”. Это значит, что при рубке мы оставляем специальный зазор в чаше, который плотно заклинивается при усадке. Дома из дикого сруба выглядят необычно на фоне классических бревенчатых домов или кирпичных коттеджей. Если оригинальность и эстетичный внешний вид является для вас одним из ключевых требований к будущему дому, то рекомендуем вам узнать о “диких срубах” подробнее.
Архитектурные особенности стиля дикий сруб
Что отличает дикий сруб от других архитектурных стилей?
Главная особенность таких домов — это полное единение с природой. Дом гармонично вписывается в любой пейзаж, будь то современный коттеджный посёлок, опушка леса или дачный массив. Как и другие дома из бревна ручной рубки он полностью экологичен и обладает природными свойствами, присущими сосне, лиственнице или кедру. 
 Среди остальных особенностей мы выделяем: 
- Разноуровневые выступы бревен как в нашем проекте “ Достоевский ” . При увеличенном диаметре бревна такой приём смотрится ещё интереснее, придаёт дому уникальность. В “Достоевском” на фоне бревна необычно выделяется декоративная каминная труба из камня — это тоже визитная карточка дикого стиля. Сочетание камня и бревна всегда привлекает внимание. Стоимость такого сруба начинается от 2 349 000 рублей.
 - Фигурные комли как в нашем проекте “ Беляев ”. Также из комлей можно вырезать необычные фигуры животных, какие-либо предметы, сделать корнепластику. Мы использовали такой приём при строительстве комплекса Муринские бани . Сруб с монтажом по этому проекту будет стоить от 2 249 000 рублей.
 - Каркасно-бревенчатая технология как в нашем проекте “ Шолохов ” . Как правило, дом построенный по этой технологии выглядит нестандартно и брутально, в нём часто используется крупное бревно, поэтому можно смело отнести его к “дикому срубу”. Цена за такой сруб начинается от 1 798 000 рублей.
 - Толстое бревно как в нашем проекте “ Шопен ” . В этой бане как раз сочетается большой диаметр и разноуровневые выступы. Это одна из самых маленьких и популярных бань в нашем каталоге, стоимость начинается от 402 000 рублей.
 
Баня со сруба под ключ. Преимущества срубов бань из бревна
Бревно не теряет привлекательного внешнего вида за счет обработки сертифицированными защитными и финишными составами на основе натурального масла и воска. Роскошно выглядит кедровая баня: со временем на поверхности бревна образуется слой патины. Цена на элитные бани под ключ из сибирского кедра и лиственницы начинается от 24 000 руб./ м3. Стоимость сосны – от 15 500 руб./ м3. На фото - сборка бани из кедра «Берендеево», диаметр бревна - 600 + мм в вершине.

Строительство бани из дерева под ключ заказывают люди, которые хотят сэкономить время и деньги и в тоже время хотят улучшить здоровье своей семьи. Вне зависимости от выбранной породы, в бане из бруса будет царить уникальный микроклимат, а воздухе витать целебные фитонциды. Полезные вещества активнее выделяются при нагревании, поэтому париться в бане из лафета или бревна более полезно, чем в бревенчатом коттедже. Усилить лечебный эффект поможет панно из гималайской соли. На фото - работа наших мастеров.

Лесозаготовительные площадки наших партнеров расположены в леса Хакасии и Кировской области. Из Хакасии мы везем кедр – это особое дерево, которое растет только в районах с благоприятной экологической обстановкой. Он идеально подходит для строительства бани из сруба: за время роста растение не впитывает в себя токсических веществ. Лиственница также заготавливается в этом регионе – это влагостойкая и прочная порода, бани из нее будут стоять до двухсот лет. Сосну рубят на границе Вяземской и Архангельской областей, где чистый воздух и грунт, не загрязненные промышленными отходами.

Древесина - это универсальный строительный материал. Кедр и сосна легко поддаются обработке, поэтому в проекты включены сложные архитектурные элементы и применять оригинальные декоративные детали. Зимние дома, бани под ключ имеют некоторые ограничения на сложные элементы.
Баня из бревна 6х6 с мансардой. Сруб с мансардой
Практичный и потому широко распространенный вариант. Его полезная площадь значительно больше, чем у постройки с одним этажом, что с лихвой компенсирует более высокую стоимость строительства. Площадь мансарды позволяет дополнительно обустроить одну-две спальни с небольшим холлом возле лестницы.
Мансардный этаж и фронтоны дома делают каркасными (что позволяет уменьшить стоимость строительства) или бревенчатыми (что сохраняет в мансарде микроклимат деревянного жилья). Проекты срубов с мансардой выглядят гораздо интереснее одноэтажных построек, так как включают больше элементов, в число которых входит:
- Ассиметричная крыша . Удобная деталь, которая служит навесом для машины или зоны отдыха.
 - Эркер .
 - Крытая веранда, терраса, крыльцо .
 
3. Двухэтажный сруб
Если участок небольшой, двухэтажный деревянный сруб 6х6 станет оптимальным способом обзавестись полноценным комфортным жильем, сохранив при этом драгоценную площадь участка. В таком жилье с комфортом смогут существовать три-четыре человека. На втором этаже обычно размещают спальные комнаты.
Преимущества сруба 6 на 6
Гармоничный и компактный сруб 6 на 6 является востребованным вариантом загородного жилья по нескольким причинам:
- Дом идеально подходит для небольшого земельного надела (от 4 до 8 соток). Полезная площадь может быть увеличена за счет возведения второго этажа или мансарды.
 - Аккуратной постройке легко найти место на узком участке ; при этом остается достаточно места для беседки или бани.
 - Дом возводится в короткие сроки .
 - Сруб э кономен в эксплуатации ; он быстро протапливается и сохраняет тепло в течение долгого времени.
 - Дополнительные детали , терраса или балкон, облагораживают строение, делают его комфортным и элегантным .
 
Планировка сруба
Рациональная планировка загородного дома определяется во время составления проекта. Для небольшой семьи предусматривается кухня, гостиная (которые нередко составляют общее пространство), одна-две спальни, а также скромная ванная и прихожая. Планировку проводят с максимальным полезным использованием площади, стараясь обойтись без коридоров.
Бревенчатый сруб 6 на 6 с мансардой станет гораздо более комфортным вариантом. Такой проект позволит включить достаточно просторную террасу или балкон; комнаты можно расположить в более удобном порядке. На первом этаже появится больше возможностей для приема гостей; на мансардном этаже, успешно заменяющем второй этаж, можно обустроить следующие помещения:
- Две-три спальни.
 - Спальню и рабочий кабинет (совмещенный с библиотекой).
 - Спальню и детскую.
 - Спальню и комнату отдыха (бильярдную).
 
В большинстве проектов срубов используются приемы, позволяющие повысить комфорт; в их число входят следующие испытанные наработки:
- Вдоль главного фасада проектируется терраса . Ее ширину рассчитывают таким образом, чтобы она была достаточной для размещения небольших кресел или чайного стола. Планировка террасы с выносом позволит выделить место для кресла-качалки, детского уголка или семейного обеденного стола.
 - Входная дверь смещается ближе к боковому фасаду ( в сторону от центра ). Нередко она ведет сразу в кухню.
 - На кухне , кроме входной двери имеется вход в гостиную и лестница на второй этаж (или в мансарду). Иногда кухня объединяется с гостиной в одно помещение.
 - Камин — уместная деталь в деревянном срубе. Камин можно выложить из кирпича или натурального камня, или приобрести готовую современную модель без дымохода (не требующую устройства вытяжки).
 - На мансарде главная спальня может иметь выход на лоджию .
 
При заказе дома под ключ дополнительно можно выбрать наружную отделку и стиль внутреннего оформления. Для внутренней отделки сруба нередко используется обшивка вагонкой. Чаще всего стены зашивают сосновой и осиновой вагонкой; реже используется отделка массивом из ценных пород (дуба, кедра, лиственницы).
Особенности готовых проектов
Строительные компании предлагают разнообразные проекты срубов жилых домов и бань из бруса и бревна, как оцилиндрованного, так и ручной рубки. Они имеют различный дизайн и планировку площади; по желанию будущего владельца любой проект может быть доработан; также возможно создание проекта «с нуля», по эскизам заказчика. Обращение к профильной компании обладает рядом преимуществ:
- Рациональностью проектирования . Внутреннее пространство удобно и имеет оптимальное количество перегородок.
 - Высокой скоростью строительства . Сроки поставки и сборки зависят от выбранного материала, комплектации и сложности проекта и в среднем составляют 3-6 недель.