Баня из строганного бревна. Особенности усадки сруба
- Баня из строганного бревна. Особенности усадки сруба
- Баня 5 на 4 с мансардой. Баня 4х5 с мансардой по эскизу заказчика
- Баня в разобранном виде. Сооружаем вход в баню
- Баня из бревна от производителя. Купить сруб бани из бревна от производителя
- Баня 4х5. Фундамент под строительство бани
- Бани из бревна. Виды бревен для бани
- Баня кругляк. Баня из кругляка своими руками
Баня из строганного бревна. Особенности усадки сруба
Усадкой сруба называют уменьшение высоты стен постройки из-за усушки древесины. Завершается этот процесс не ранее, чем через 1,5 года после возведения коробки. К отделочным работам можно приступать через полгода – год, так как за это время происходит основная усадка стен. Точное время предсказать невозможно, так как зависит от многих факторов: материала – усадка из бревен выше, чем усушка бруса; времени года – дерево, спиленное в зимнее время, более плотное и надежное; размеров бревен или бруса; влажности дерева; обдувания местности ветром; сорта дерева – кедр и лиственница являются самыми прочными и плотными, а усадка сруба из них самая минимальная по сравнению с другими сортами дерева.
Так как дерево легко принимает и отдает влагу, а также сужается или расширяется при изменении температуры, то при строительстве сруба категорически нельзя применять неподвижные крепления. Усадка бани бывает механической и естественной. В первом случае верхние венцы давят на нижние. Усадку бани можно уменьшить таким образом.
- Применяя джутовый утеплитель, смягчающий давление конструкции.
- Используя квадратные нагели, располагая их в шахматном порядке. Они способны плотно застрять в отверстии, тем самым превратив сруб в единое целое.
- Усадочными домкратами, которые устанавливаются под венцы сруба в проблемных местах.
- Пружинными компенсаторами, состоящими из длинного самореза со стальной пружиной. Устанавливаются они в заранее просверленные отверстия. Их основной задачей является обеспечение прочного соединения венцов между собой без образования больших щелей, ускорение и облегчение процесса усадки сруба.
Естественную же усадку уменьшить невозможно, так как это природное явление. Полное окончание усадки бани происходит через 5–10 лет с момента возведения сооружения. За это время габариты бани могут уменьшиться на 5–10 %. То есть, например, если высота потолка сначала была равна 2,5 м, то после усушки древесины может понизиться до 2,25 м.
Каждый этап строительства бани должен быть тщательно продуман и проанализирован. Неукоснительное соблюдение технологии позволит вам построить своими руками качественную и долговечную баню. Баня из бревна или бруса выглядит привлекательно и не нуждается в дополнительной отделке фасада.
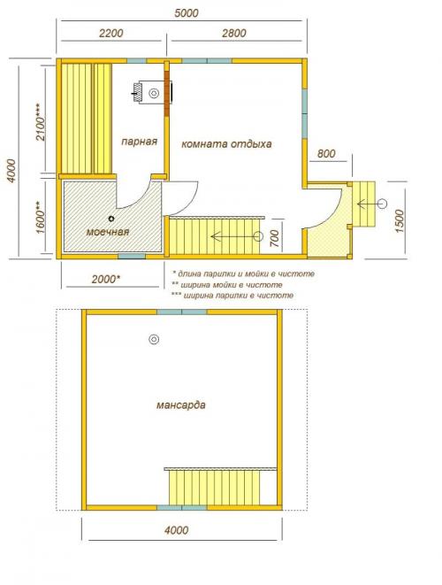
Баня 5 на 4 с мансардой. Баня 4х5 с мансардой по эскизу заказчика
Все фотографии принадлежат компании "Русские плотники".
В сентябре 2016 года нами построена баня в Сергиево-Посадском районе. Эскиз был разработан заказчиком самостоятельно, исходя из особенностей участка и пожеланий семейства. По-моему вышла компактная и функциональная постройка, сочетающая в себе собственно баню, которая заняла первый этаж, и приличное спальное место на мансарде.

Свайно-винтовой фундамент, предоставленный заказчиком, усилен (обвязан) по периметру стальным профилем. Это было сделано по той причине, что сваи возвышаются над землёй на разной высоте из-за особенностей ландшафта.
Основание бани (обвязка), лаги пола, черновой пол и все элементы силовой конструкции изготовлены из пиломатериалов камерной сушки (наша опция – «сухой комплект»). На стены и перегородки заложен профилированный брус камерной сушки, сечением 145*95 мм, профиля «блок-хаус». Сруб собирали на деревянные нагеля с применением пружинного узла СИЛА.
Фронтоны кровли отделаны снаружи блок-хаусом 28*140 мм. В «карманах» кровли установлены вентиляционные лючки На крышу постелили профнастил с полимерным покрытием цвета «зелёный мох» (RAL6005). Устроили систему водостока фирмы ДЁКЕ, смонтировали снегозадержатели.
В моечной устроен «протекающий пол», с выводом стока за периметр бани. Стены и потолок моечной отделаны вагонкой из лиственницы «А». Стены и потолок парилки – вагонкой из осины «А». Брусовая основа стен этих помещений была обработана защитным составом НЕОМИД, затем устроена паролизоляция, контробрешётка и только потом стены обшиты вагонкой, с учётом необходимого зазора на усадку.
Печь было решено оставить базовую – ЕРМАК 12 с навесным баком из нержавейки, ёмкостью 35 л. Вертикальный дымоход, проходящий через мансарду, выполнен из стальных нержавеющих сэндвич-труб 115*200 мм. Разделка топочного портала кирпичом заложена в базовой комплектации.
В качестве бонуса, вся постройка была обработана снаружи и изнутри огнебиозащитным составом НЕОМИД.
Фото строительства бани 4х5 из бруса







Бригада из двух человек собрала баню за 12 дней. Стоимость бани в приведённой комплектации: 577000 рублей .
Благодарим заказчика Владимира Игоревича и его семейство, за оказанное нам доверие и возможность заработать. Спасибо от всего коллектива «РУССКИХ ПЛОТНИКОВ», лёгкого пара и доброго здоровья!

Баня в разобранном виде. Сооружаем вход в баню
Когда мы позаботились о конструкции стен, пола и крыши нашего сооружения, мы приступаем к очень важной части нашей бани – входу. Когда мы впервые начали экспериментировать над конструкцией бани, мы раз от раза совершали практически одну и ту же ошибку – мы пренебрегали правильно смонтированным устройством входа-выхода из бани.
Так как мы привыкли принимать баню все вместе, то в момент открытия закрытия «двери» в баню, роль которой выполняла вышеописанная пленка с примотанной к нижней части палки для дополнительной фиксации, мы теряли достаточно большое количество тепла. Это позволило нам задуматься над устройством тамбура для бани.
Вариантов может быть несколько. Первый и на наш взгляд самый правильный, это монтаж дополнительной секции из полипропиленовых труб которая будет вплотную монтироваться к основной бани в месте где располагается выход и делаем две пленочных двери, на выходе из тамбура на улицу и на входе в парную. Тамбур отсекает попадание холодного воздуха в парную и сохраняет высокую температуру в бане. Но если заморочки с дополнительной тамбурной секцией вам не по душе, то её роль может выполнять дополнительная пленочная дверь внутри самой парной поверх первой с одним лишь исключением – она должна быть большего размера и перекрывать основной вход с запасом.
Баня из бревна от производителя. Купить сруб бани из бревна от производителя
Сруб бани от производителя изготавливается из качественного леса хвойных и лиственных пород, зимней заготовки. Такой подход позволяет получить материал с хорошим соотношением содержания влажности, что гарантирует сохранение правильной геометрической формы даже при продолжительном использовании. Строительный материал отличается лучшими характеристиками:
- Прочность. Позволяет сохранять целостность конструкции независимо от действия внешних механических и атмосферных факторов;
- Долговечность. Срок службы помещения измеряется десятилетиями, для его продления требуется минимальные затраты на периодическое обслуживание;
- Доступность. Купить сруб бани сможет практически каждый желающий, древесина самый доступный материал в соотношении цены и качества;
- Универсальность. Помещение может быть использовано по нецелевому предназначению в зависимости от потребности его владельца.
Быстрота и функциональность
Возведение постройки занимает считанные дни, в стоимость сруба бани может быть включена его доставка, установка и сборка «под ключ». Технология изготовление подразумевает точную подгонку бревен между собой, все щели заполняются натуральными уплотнителями. Парная покрывается вагонкой с жаропрочными характеристиками. Потенциальный покупатель имеет возможность купить сруб бани из дерева подходящего для него размера, обустроив на своем загородном участке место для полноценного отдыха и принятия гигиенических процедур. Строение полностью укомплектовано, в стоимость постройки входят кровельные и отделочные материалы, окна, двери и фундаментные блоки. Установить сруб можно в любом удобном месте дачного участка, привлекательный внешний вид позволит сооружению гармонично вписаться в ландшафтный дизайн участка.
Баня 4х5. Фундамент под строительство бани
Размеры и общий вес бани 4х6 говорят, что основа нужна капитальная. В этом случае альтернативы ленточному фундаменту нет. Но все же часто встречаются проекты со столбчатой основой. Это допустимо только необходимо монтировать опоры чаще. По регламенту их устанавливают через каждые два метра, а чтобы повысить прочность, можно убавить расстояние. Только нельзя ставить столбы ближе, чем на 1 метр друг от друга. Это может привести к обрушению почвы и потере несущей способности основы.
Допускается вариант и с винтовыми сваями, но только при условии, что кровельная конструкция не будет оказывать дополнительную нагрузку. В этом варианте, опоры можно ввинчивать через каждые 50–70 см. Такое расположение придаст свайному фундаменту высокую прочность.
На этапе закладки фундамента проводятся все коммуникационные каналы. Баня 4х6 метра, будет капитальной, и строить помещение таких размеров для сезонного пользования просто глупо. Поэтому закладывая основу, подводятся все линии. Гильзы для трубопроводов и канализации монтируются в ленте или фиксируются между свайными опорами. После сборки сруба, все подводы нужно будет утеплить. Но эти работы проводятся только после возведения кровли для бани.
На этом этапе моделируется и расположение банной печи. Если вы решите использовать для обогрева аппараты, работающие на электрических тэнах, то ничего делать не нужно. Их устанавливают, по окончании строительства. Кладка печи-каменки, производится на предварительно подготовленную основу. Фундамент нужно сделать заранее. Печь кладется после возведения стен.
Бани из бревна. Виды бревен для бани
От того как их обтесывают, зависит и внешний вид готовой постройки, и ее эксплуатационные характеристики.
Скобленые бревна
Едва ли не самые долговечные, поскольку в процессе обработки снимается минимум слоев дерева. Основные защитные качества, в том числе смолистость, при обработке остаются нетронутыми.
Бревна получаются разного размера, часто с сучками. Из-за этого новичку в строительном деле непросто их подогнать друг к другу без зазоров, времени уйдет много. Но, с другой стороны, такой материал дешевле, чем бревна, обтесанные под один диаметр. И все же если ошибиться в подгонке, будет сильно «сифонить». Следом появится грибок. Поэтому уплотнение и еще раз уплотнение — мантра для строителя.
Фото: kelohouse.ru
Оцилиндрованные бревна
Второе название — калиброванные. Их обрабатывают на специальном станке до идеальной гладкости. Таким образом, снимаются все внешние слои, защищающие древесину от негативных воздействий. Поэтому обработке специальными пропитками и антисептиками придется уделить максимум внимания.
Зато ровные стволы легче будет укладывать, если вы намерены делать все своими руками.

Фото: Instagram altayaltyn
Строганные бревна
Нечто среднее между первым и вторым вариантом. Их обрабатывают электрорубанком. Верхний слой снимают незначительно, но при этом достигают более гладкой поверхности, чем в скобленых бревнах. Тем не менее, они также требуют тщательной подгонки, хотя и не столь трудоемкой.

Фото: pzimniyles.ru
Лафет
Его опиливают лишь с двух противоположных концов, поэтому он остается довольно прочным и мало подвержен растрескиванию. Не требует внутренней отделки. А если обработать защитными средствами, прослужит не один десяток лет.

Фото: Instagram woodtrim80
Ошкуренные бревна
Кора почти сохраняется: снимается только тонкий верхний слой. Дерево естественным образом защищено от гниения, деформации, появления трещин и плесени. Однако для надежности пропитками лучше не пренебрегать.
Через несколько лет эксплуатации здание может немного потемнеть, но на характеристиках материала это не отразится.

Баня кругляк. Баня из кругляка своими руками
Кто и когда построил первую баню из дерева – точно неизвестно. Но можно с уверенностью утверждать – бревенчатые бани прошли проверку временем и популярность их только растет. Преимуществ у бани из бревна кругляка достаточно: экологичность материала, несомненная польза для здоровья, долговечность и надежность здания, и, конечно же, привлекательный, колоритный внешний вид бани играет далеко не последнюю роль в ее популярности.
Бревенчатая баня – предмет гордости каждого хозяина загородного или дачного участка, особенно, если она построена своими руками. Сделать это вполне реально, хотя и непросто. Ниже мы вкратце рассмотрим основные этапы строительства бани – от выбора материала до монтажа крыши. Надеемся, что приведенные материалы помогут вам получить общее представление о принципах возведения бревенчатых построек.
основные этапы строительных работ:
• Подготовка проекта.
• Выбор и закупка материала.
• Строительство фундамента.
• Обработка и подготовка бревен.
• Возведение стен.
• Монтаж дверей, окон, кровли.
• Строительство печки, вывод дымоходной трубы.
• Внутренняя отделка помещения.
• Теплоизоляция здания.
выбор дерева для строительства
Можно с уверенностью утверждать, что правильно выбранная древесина для бани – половина успеха. К этому нужно отнестись максимально серьезно. В подавляющем большинстве случаев бани строят из хвойных пород, прочных и устойчивых к воздействию влаги.