Как сделать сруб своими руками?
- Как сделать сруб своими руками?
- Как построить срубовой дом своими руками. Сруб своими руками
- Сделать сруб бани своими руками. Lux Standart Ru
- Сруб в чашу или в лапу. Рубка срубов в чашу и лапу
- Самый простой способ срубить сруб. Рубка в чашу – самостоятельная работа
- Сруб из бруса своими руками. Выбор материала
- Как правильно строить сруб. Выбор бревен для строительства сруба
- Как рубить сруб в чашу. Что такое сруб в чашу
Как сделать сруб своими руками?
Деревянное домостроение набирает обороты, что немудрено, ведь жить в экологически чистом объекте в век каменных джунглей намного полезнее для здоровья. Самостоятельное устройство дома своей мечты вполне возможно при условии, что собственник загородного участка владеет навыками столярного дела. Ниже даны описания важных процессов, предшествующих такой работе, ответ на вопрос о том, как сделать сруб своими руками, а также рекомендации по его эксплуатации после монтажа.
Схема сборки дома из бруса.
Подготовка участка
В чем она заключается? Площадка должна быть очищена от любого вида растительности. Более того, после выкорчевывания всех кустарников следует полить землю химикатами, для того чтобы корни вновь не вытянулись. Если этого не сделать, то можно ждать появления деревьев в срубе. Возможно, с точки зрения дизайна, это будет выглядеть стильно и необычно, однако сломанные доски пола и постоянная сырость устраивать владельцев вряд ли будут.
Схема подготовки бревен для сборки сруба.
Очищенную площадку огораживают, тем самым предотвращая ход чужому автотранспорту и обозначая границы стройки. Нужно обеспечить заезд спецтехники, если таковая будет использована, и провести на участок электричество с водой. Таким образом, площадь можно считать готовой для следующего этапа — фундамента.
Было бы хорошо оборудовать место для складирования древесины. Обычно это навес, защищающий материал от природных действий. Кроме того, его потребуется укрывать пленкой, если строительство затянется.
Строительство фундамента
Схема фундамента под дом из бруса.
Выбирая фундамент для сруба, следует исходить от его размеров и условий местности:
- Ленточный. Подойдет для любого типа строений. Хорошо ведет себя на проблемных грунтах. Можно быть уверенным, что сруб со временем не «поедет». Минус — требует большого количества бетона, что не может удешевить строительство, даже если сделать сруб самому.
- Свайный. Подходит для легких одноэтажных зданий. Прекрасно ведет себя на пучинистых и скалистых почвах, сокращает расходы строительства, но об утеплении пола можно забыть: гуляющий ветер, наметающий сугробы под сруб, это обычное дело. Его возводят в теплых местностях.
- Столбчатый. Прежде всего, предназначен для сырых земель. Он слишком капризный: после усадки уровень обязательно сдвинется, поэтому его строительство должно быть отдано на откуп специалистам. Экономичен.
- Плитный. Самый надежный, но дорогой. Представляет собой полностью залитое бетоном основание. Прекрасно показывает себя на проблемном грунте: не ведет, не допускает сырости или пучения. Трудоемок.
Ниже дано описание монтажа для ленточного фундамента как наилучшего в соотношении «цена-качество».
Инструменты для изготовления сруба.
Для работы понадобятся:
- лопата;
- уровень;
- измерительные приборы;
- опалубка — щиты, доски;
- щебень, песок;
- арматура;
- утеплитель;
- бетонная заливка.
Процесс начинается с разметки. Каждая несущая стена сруба должна быть устойчиво поставлена на фундамент. С тем условием и намечается контур. Очень удобно пользоваться деревянными кольями и суровыми нитками.
Затем по намеченным линиям выкапываются канавы. Грунт нужно сразу складировать отдельно, он еще может понадобиться. Глубина, в зависимости от промерзаемости, не может быть меньше 70 см.
Далее канавам нужно дать высохнуть и насыпать на дно щебень и песок. Каждый слой тщательно утрамбовывается и поливается водой. В совокупности толщина подушки должна составить 30 см.
Угловые соединения брусовой коробки.
После этого будущий фундамент нужно утеплить. Для этого используется стирол. Плиты укладывают по бокам канавы и закрепляют штырями, протыкая и таким образом фиксируя их по стенкам. Если пренебречь утеплителем, то впоследствии это скажется на качестве эксплуатации.
Наступает укладка арматуры. Она непременно нужна для жесткости конструкции. Для этого стальные пруты перекладывают пересечением и проваривают в узлах и на углах будущего сруба.
Как построить срубовой дом своими руками. Сруб своими руками
Нередко людям, которые проживают в местности с доступным в продаже лесом кругляком, возникает мысль построить дом самостоятельно: тем более, что данной премудростью еще совсем недавно владели практически все крестьяне, не зная ни грамоты, не владея технологией строительства. Построить сруб своими руками не велика наука, но все же требует глубокого понимания процесса и умения адаптировать старые плотницкие технологии под новые условия.

Материалы и инструменты для возведения сруба
Сразу спешим разубедить людей, которые хотят поставить сруб, используя современный электроинструмент для экономии времени. К сожалению, использование бензопил и электрорубанков не рекомендуется, их можно использовать только для тяжелых работ. Лес обработанный электроинструментом более подвержен плесени и процессам гниения. Для строительства срубов используется специальный плотницкий набор.Для работы кроме топоров потребуется стандартный рубанок (а также рубанок шерхебель для чистовой работы) и скобель (для снятия коры), также есть целый ряд дополнительного столярного инструмента для рубки в чашку. Для выемки продольного паза используется тесло – топор с округлым лезвием и перевернутым топорищем. При обработке дерева ручным инструментом естественно закупориваются древесные поры, в результате дом рубленный вручную простоит гораздо дольше.
Плотницкий топор и его особенности: где заказать и как сделать

Дом из кругляка рубится несколькими типами топоров, профессиональные рубщики заказывают топоры для рубки домов под заказ из качественной закаленной стали. В самом простом варианте рекомендуем запастись топором для черновой рубки, который без веса топорища должен вести около 1,6 кг, иметь угол заточки 25 градусов, для удобства используйте длину топорища 60 см. И второй топор используется для чистовой рубки с более высокой точностью, такая модель будет иметь угол заточки 20 градусов, массу 0,9 кг и топорище длиной до 50 см.
Многие артели в своей работе используют реставрационно-плотницкий топор, который восстановил и сделал на основе старинных образцов А.В. Попов. Есть его множество модификаций, которые сделаны самим же Поповым. Приблизительно до 90% столярных работ по рубке сруба можно выполнять этим инструментом. Топор Попова имеет клинообразную форму, фактически этот топор является полуколуном, так как в его задачи входит не только рубка, но и удаление щепы во время работы. Это требование достигается с помощью специальной формы инструмента.
Качественные топоры для рубки срубов выпускает ряд российских кузниц. Одной из самых любопытных является «ТопорСиб». В данной артели можно приобрести весь необходимый инструмент для рубки сруба в виде готовых наборов.
Выбор и подготовка бревна для строительства сруба
Для строительства сруба потребуется лес кругляк. Толщина сруба выбирается исходя из доступности материалов. Обычно дом из кругляка своими руками рубится именно из доступных и недорогих материалов. В российских условиях речь идет о сосновом кругляке. В продаже доступно 4 сорта леса кругляка, специалисты рекомендуют 2-й сорт:
- 1 сорт: комлевая часть, без сучков, используется для высококачественных работ из дерева;
- 2 сорт: сортамент из срединной и комлевой части ствола сосны, имеется небольшое количество сучков и трещин;
- 3 сорт: лес кругляк с большим количеством сучков;
- 4 сорт: лес с любыми недостатками, кроме гнили.
Сосну для возведения сруба выбирают из бюджетных соображений, кроме того, эта древесина отличается мягкостью и податливостью в обработке, имеет малое количеству сучков, не требует дополнительной обработки, сбег ствола (разница в диаметре) не превышает обычно 1 см. Сосна не так растрескивается как ель в обработке, но обладает мягкостью, поэтому для нижних бревен, которые находятся ближе к земле, рекомендуется лиственница или дуб. При этом окладной венец может быть выполнен из сосны, но ее диаметр должен быть на 5-7 см больше основного бревна. В отдельных случаях от грунтовой влаги может спасти высокий фундамент.Для рубки сруба используется только свежее дерево, в идеале сруб рубится в лесу, где можно подобрать материал, а после перевозится на место установки. Свежий материал должен хранится не более 2х недель, для хранения на стройплощадке кругля укладывается штабелями. Для северных районов с температурой, достигающей -40С в зимний период, используются бревна с диаметром 21-24 см, для средней полосы достаточно 15-18 см.
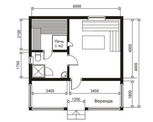
Сделать сруб бани своими руками. Lux Standart Ru
Главная страница » Статьи » Сруб бани своими руками — пошаговая инструкция! Дерево, будучи экологически чистым материалом, не только эффективно сохраняет тепло, но и придает воздуху в помещении особый аромат. Сруб бани своими руками Сруб бани 4х6 м Чтобы построить деревянную баню, нужно вначале подготовить брус. Подготовка кругляка Подготовка бревна Внимание! Для определения качества бревен (вы в любой момент сможете отказаться от пиловочника низкого сорта), необходимо знать об идеальных условиях заготовки, которые мы рассмотрим ниже. Лес-кругляк необходимо заготавливать при минусовой температуре, то есть зимой. Именно в это время минимизируется количество влаги в древесине, следовательно, во время сушки материал будет меньше деформироваться и растрескиваться. В целях долговечности сруба, при строительстве используются определенные участки бревен (так называемые комлевые бревна). Эти участки начинаются от корневища и заканчиваются у кроны. Такие комлевые бревна более плотные (чем выгодно отличаются от верхушек) и в них практически нет сучков. Также к критериям выбора относятся круглая форма и степень кривизны ствола. В обоих случаях браком является погрешность, превышающая 1 см на погонный метр. Заготовка бревен для сруба Комлевые бревна Внимание! Если длина, например, 5 м, а погрешность превышает 5 см, то бревно смело можно забраковать. То же относится и к диаметру. К примеру, диаметр основания бревна составляет 35 см, в то время как верхушки – 25 см или меньше. Такой кругляк категорически не рекомендуется к применению в строительстве. Бревна для сруба Наконец, обратите внимание на породу дерева. В идеале для бани должны использоваться хвойные породы деревьев (ель, лиственница и проч.). Лиственница характеризуется устойчивостью к влаге, хотя в крайнем случае можно прибегнуть и к сочетанию «сосна-ель», в котором из сосны возводятся несколько первых венцов. А если при строительстве используется только ель, то материал необходимо несколько раз обработать антисептическим средством. Дальнейшие действия выполняйте в соответствии с составленным ранее проектом. Такой проект можно составить самому, найти в Интернете или же заказать у специалистов. Именно с помощью этого документа можно рассчитать требуемое количество расходного материала, определить площадь и форму основания. Обработка бревна под скобель Обработка бревна под скобель Шаг 1. После того как вам привезли расходный материал (или вы спилили и доставили его самостоятельно), ему необходимо дней 25-30 для того, чтобы отлежаться. Шаг 2 . Далее тщательно рассмотрите и переберите бревна – оставьте лишь самые качественные из них, а дефектные или поврежденные отбракуйте. Шаг 3. Затем приступите к обработке. Вначале очистите бревна от коры (делайте это аккуратно, чтобы те не растрескались), оставив ее немного по бокам – примерно по 15-сантиметровой полоске с каждой стороны. Шаг 4. После обработки уложите бревна на хранение примерно в 25 см от поверхности земли. Можете укладывать как угодно – штабелями, пачками и т. д., главное, чтобы дистанция между бревнами составляла 7-10 см. Схема подготовки бревен для сборки сруба Хранение бревен Сразу оговоримся, что от массивных монолитных фундаментов можно отказаться ввиду незначительного веса будущей конструкции. С целью экономии можете прибегнуть к одному из двух возможных легких конструкций, а именно к: Рассмотрим каждый из вариантов. Сруб бани своими руками — пошаговая инструкция!


Этап 1. Подготовка кругляка





Этап 2. Обработка бруса



Этап 3. Строительство фундамента
Сруб в чашу или в лапу. Рубка срубов в чашу и лапу
Перед тем как приступить к строительству деревянного дома, нужно выбрать, какой вид рубки бревна больше всего подходит к проекту. Варианты рубки срубов.
На данный момент существует два основных метода рубки деревянных домов, это методы рубки в лапу и чашу.
Основное различие сборки в лапу и чашу состоит в разнице обработки угловых соединений дома. Наиболее подходящий должен выбираться исходя из особенностей объекта строительства и погодных условий.
Рубка срубов в чашу
Одним из первых появившихся видов рубки является рубка в чашу. Такой вид рубки позволит сформировать индивидуальную, более оригинальную конструкцию дома. Он не требует большой внешней отделки. Основная идея такого вида обработки бревен заключается в их выступе за угловую границу дома на расстояние 200-300 мм. Поэтому внутренняя площадь дома будет значительно меньше наружной. Разница может достигать 900-1000 мм от исходной длины бревна. Это, конечно, является очень большим минусом в применении такого метода рубки. Второй минус такого метода обработки заключается в том, что облицовку наружных стен дома сделать значительно сложнее.
При использовании этого метода изначально в бревне нужно вырубить чашу. Глубина чашки должна составлять половину диаметра укладываемого в нее бревна. Их верхний край нужно выровнять таким образом, чтобы он был овальной формы. Насадка бревна в бревно должна осуществляться чуркой из дерева при помощи кувалды. При этом необходимо проверять вертикаль стен. Сделать это можно при помощи уровня или простого отвеса, изготовленного из веревки.

Типы угловых рубок “в лапу”.
Для устойчивости венцов соединения нужно их связать между собой. Делается это при помощи шипов (нагелей), они помогут удержать конструкцию между собой относительно горизонта. Нагели должны иметь прямоугольное сечение, изготавливаются из дуба, ясеня или бука. Шаг между ними должен составлять 1500-2000 мм. Для более надежной сборки стен нужно каждый венец строения связывать между собой.
Плюсы использования метода рубки в чашку заключается в том, что углы дома, построенного таким способом, будут очень хорошо защищены от промерзания. Более того, они будут хорошо защищены от всех погодных аномалий (дождя, ветра и т.д.).
Рубка бревен деревянных домов в чашу может осуществляться 2 способами:
- Рубка чашей вверх.
- Рубка чашей вниз.
Считается, что 2 вариант является наиболее предпочтительным. Он будет снижать восприимчивость углов и стен дома к возможным перепадам давления. Это будет способствовать повышенной стойкости стен и их уменьшенному износу, появляющемуся с течением времени.
Вернуться к оглавлению
Рубка срубов в лапу
Лапа (лапка) – это обработанный в 5 граней конец бревна. Рубка в лапу является одним популярных методов сборки деревянных строений. Суть рубки в лапу состоит в том, что все бревна для будущего дома нужно подбирать с одинаковым диаметром. При этом их длина должна оставаться неизменной и не выступать за углы дома.
Такой метод может быть 2 видов – простой и сложный. При использовании 1 варианта нужно применять шипы вставные. При втором – шипы коренные. Начинать нужно с тщательной разметки торцов соединения. Первым должно быть бревно, диаметр которого будет самым маленьким относительно остальных. Лапа, изготовленная на его торце, будет служить образцом для других. Отклонения, которые могут возникнуть при неправильной подготовке лап, приведут к нарушению вертикали стен. Они должны быть подготовлены предварительно по специальному шаблону. После этого подготовленный материал нужно оставить для просушки. После его высыхания дом окончательно собирают. Венцы конструкции нужно закрепить между собой шипами. Зазоры между ними необходимо будет проконопатить через 6 месяцев после сборки.
Сложность такого метода будет состоять в том, что все элементы должны очень тщательно подбираться и подгоняться между собой. Это позволит обеспечить наиболее мелкие зазоры между венцами строения. Но, в отличие от предыдущего метода, рубка в лапу не приведет к потере внутренней площади помещения. Углы такого помещения будут менее устойчивы к промерзаниям, поэтому их нужно дополнительно обшить досками.
Какой метод сборки бревенчатых домов применить, каждый должен решать самостоятельно исходя из собственных вкусов и индивидуальных предпочтений. Однако следует помнить, что дом должен быть не только красивым, но и надежным.
Самый простой способ срубить сруб. Рубка в чашу – самостоятельная работа
Правильная разметка – залог точного сопряжения. Маститые плотники имеют для этого специальное приспособление – черту. Это молоток с двумя острыми прутьями, позволяющими точно очертить контур будущей чаши.Но для обывателя это сложный процесс, поэтому стоит воспользоваться обыкновенными приборами измерения и размечать каждое бревно в отдельности. Далее о процессе пошагово:- Начинается разметка сруба в чашу и рубка с определения параметров брёвен. Компании по изготовлению домов нумеруют каждый хлыст в отдельности, владельцу будущего дома также не стоит пренебрегать этим методом.

- Седло чаши приблизительно равно половине толщины верхнего бревна и ширина её соответственно носит такой же размер. Отступить от края следует не менее 25 см для разметки стоит воспользоваться острым гвоздём либо химическим карандашом. Но надо позаботиться, чтобы он был несмываемый.
- Для рубки нужно пользоваться острым тесаком либо бензопилой. Компании-застройщики имеют для этого специальное оборудование, поэтому чаши получаются идеально ровными и гладкими.
- Для того чтобы сделать канадский вариант, используют только ручную работу. В нижнем венце вырубают в середине чаши шип. В верхнем – соответственно, паз. Нельзя забывать, что при сборке, они прокладываются уплотнителем.
- Когда венцы подогнаны их разбирают. После установки окладного «круга», венцы должны собираться строго чашей вниз.
Это нужно для того, чтобы до отделки и окончательной усадке, дождевая влага не попадала внутрь вырубленной чаши и не застаивалась там. Несоблюдение такой меры приведёт к гниению всей древесины.
РЕКЛАМА
Самостоятельно срубить сруб в чашу своими руками можно. Но при отсутствии навыков эта работа затянется.Сруб из бруса своими руками. Выбор материала
Изготовление срубов из бруса своими руками начинается с разработки проекта и выбора материала. И если план здания мы оставляем на ваше усмотрение, поскольку все зависит от конкретных пожеланий, то по поводу бруса вполне можно дать ряд общих рекомендаций.

Структура и преимущества клееного бруса
Все заготовки, используемые для постройки срубов, делятся на несколько групп. Это деление зависит от профиля изделия, его структуры, а также от содержания влаги.
Разница в функциональных параметрах у данных материалов также весьма существенна:
- ровные детали, которые выпиливаются из бревен в форме квадрата или прямоугольника, стоят дешевле, но при этом не обеспечивают должной герметичности при соединении венцов . Так что если вы хотите получить максимальную теплоизоляцию стен даже без отделки – выбирайте профилированный брус со специальными замками на соединительных поверхностях;
Обратите внимание!
У некоторых моделей профилированного бруса присутствует даже специальная выборка под укладку межвенцового утеплителя.
Использование данной теплоизоляционной технологии существенно повышает уровень энергосбережения стены.
- что касается структуры, то наиболее распространенным является цельный материал . Однако при высыхании длинные брусья могут деформироваться, потому иногда для постройки используется брус, склеенный из ламелей с разнонаправленными деревянными волокнами. Конечно, цена таких изделий будет выше, но зато, выбрав клееные заготовки, мы практически гарантируем, что их геометрия останется неизменной;

Разновидности клееных профилированных деталей
- по содержанию жидкости различают брус естественной влажности, воздушной сушки и камерной сушки . Первый является наиболее дешевым, но при этом дает сильную усадку, так что перед отделкой сруб должен простоять не менее года. Вот почему для ускорения стройки обычно используют заготовки, прошедшие сушку на открытом воздухе или в специальных камерах.
Любая из этих комбинаций может быть успешно использована для возведения сруба. И все же в последнее время мастера отдают предпочтение цельным профилированным изделиям, прошедшим воздушную сушку. По мнению большинства специалистов, именно такое сырье обладает оптимальным сочетанием стоимости и эксплуатационных параметров.
Источник: https://domastroevo.ru/novosti/srub-doma-svoimi-rukami-proektirovanie-i-vybor-materialov
Как правильно строить сруб. Выбор бревен для строительства сруба
Если вы решили построить дом из бруса своими руками, особое внимание необходимо уделить выбору материала. Немаловажно, чтобы вся партия состояла из бревен преимущественно одной породы. Только в качестве исключения допускается использование разных пород с одинаковыми свойствами (например, сосна и ель), либо пород с разными свойствами в разных уровнях (например, первые два венца из лиственницы, а остальные — из сосны и ели).
При выборе бревен для сруба помните, что согласно нормативным документам, толщина бревен в верхнем отрубе для наружных стен отапливаемых зданий, расположенных в зонах с минимальной зимней температурой до -30 °С, должна быть не менее 220 мм. В том случае, если в месте вашего проживания температура зимой опускается до -35 °С и ниже, рекомендуемая толщина бревен может доходить до 360 мм.
Для того чтобы технология строительства деревянных домов из бревна была соблюдена в полной мере, приобретенный лес должен быть чистым, без гнили, черноты и синевы. Впрочем, отдельное проявление черноты допустимо, но потребует дополнительных затрат на специальные антисептики. При разгрузке следите за тем, чтобы бревна не бросали, а аккуратно и осторожно складировали в заранее отведенном месте.
До того как построить дом из бревна своими руками, весь материал необходимо подготовить. Если вы имеете дело с лесом-кругляком (а иногда это касается и лафета), то его окаривают, ошкуривают, ровняют и удаляют сучки. Затем его отсортировывают по возрастанию диаметра, так как на нижние венцы сруба будет ложиться лес большего диаметра, чем на верхние.
Как рубить сруб в чашу. Что такое сруб в чашу
В наше время все больше людей интересуются деревянными строениями. Экологически чистые, с хорошим и весьма оригинальным внешним видом, они позволяют владельцам ощутить себя в атмосфере далекого прошлого, перенося их в эпоху предков. Сегодня иметь рубленую деревянную избу или баню на участке – значит обладать хорошим вкусом и заботиться о своем здоровье. Наши предки знали, как рубить сруб в чашу и этот метод получил наибольшее распространение. Техника этого метода достаточно проста, однако для того, чтобы ее освоить, необходимо знать некоторые приемы плотницкого мастерства.
Достоинства и недостатки рубки в чашу
Такой метод возведения деревянных строений характерен для сельской местности России, в том числе и для тех мест, где климат весьма суров - Сибири и Русского Севера. Свое название метод получил благодаря полукруглой выемке, которую мастер делал в нижнем бревне – так называемой «чаше». Эта выемка служила для перпендикулярной укладки в нее верхнего бревна. Такой метод соединения позволял избегать значительных щелей и обеспечивал весьма плотную подгонку бревен друг к другу. Говоря о том, что такое сруб в чашу, нельзя не упомянуть о его разновидностях. Если чаша делается в нижнем бревне, то это верный признак так называемой «русской рубки» (или т.н. «в обло»). В том случае, когда мастер вырубает чашу в бревне, которое будет сверху, имеет место «сибирская рубка»( другое название – «в охлоп»). Считается, что во втором случае здание больше защищено от неблагоприятных погодных факторов.
Итак, достоинствами сруба в чашу можно назвать:
- достаточно крепкая конструкция;
- не продуваемые углы постройки;
- эстетичный внешний вид.
Но сруб в чашу имеет некоторые недостатки:
- проблемы с обшивкой сруба;
- из-за выступа углов пониженная полезная площадь помещения;
- высокий расход дерева.
Что понадобится плотнику
Итак, Вы собрались сделать сруб в чашу своими руками. Для этого понадобится следующее:
- пила (электрическая либо бензиновая);
- топор;
- плотницкая черта (циркуль);
- стамески.
Также понадобится материал для заделки щелей (пакля, джут и т.п.)
Из какого дерева рубить?
Специалисты по плотницкому делу отдают предпочтение такому дереву, как сосна. Несмотря на то, что она не самый лучший материал в обработке (древесина сосны отличается твердостью и склонностью в процессе работы с ней к образованию сколов), именно сосновые бревна обладают лучшими характеристиками по устойчивости к грибковым заболеваниям древесины и нападениям короедов. Кроме того, стволы дерева ровные и практически лишены такого дефекта, как сучки. Постройки из сосны обладают долговечностью. Для строительства нужно выбирать бревна толщиною от 20 до 25 см. Заготавливать материал нужно зимой, так как в ходе процесса сушки древесины стволы будут меньше подвержены деформации и растрескиванию.
Методика работы
Такому процессу, как рубка сруба в чашу, должна предшествовать подготовка фундамента с проведением работ по его гидроизоляции. Залогом успеха здесь будет, несомненно, строгая горизонтальная поверхность.
Приступаем к созданию нижнего слоя (окладного венца). Для этого берем два ствола, которые пойдут на устройство длинных стен сруба, кладем их параллельно, Затем на их концы кладутся два ствола перпендикулярно. Далее с помощью плотницкого циркуля производится разметка выемок под бревна. Делая это, необходимо соблюдать особую тщательность и точность, так как только правильно подогнанные бревна обеспечат надлежащее качество работы. Размечая чашу, необходимо добиться погружения верхнего ствола в нижний ровно наполовину.
Далее с помощью инструментов производим вырубку наших чаш. После этого предварительно устанавливаем в них верхние бревна. Для того, чтобы бревна хорошо прилегали по вертикали друг к другу в нижнем бревне, в месте, где находится его верхняя кромка, необходимо вырубить паз. Он выполняется по всей длине и его толщина может составлять от 12 до 20 см, в зависимости от размеров ствола. Перед установкой бревна в паз кладут утеплитель.
Для обеспечения ровности всей конструкции в чашах на полтора бревна высверливают отверстия, в которые вставляются нагели – специальные шипы. Процесс сборки сруба сопровождается пристукиванием бревен с помощью чурбана.

И еще…
Собирая сруб, необходимо тонкие годовые кольца расположить снаружи, а толстые – внутри. Постройку можно собирать частями, осуществляя связку на земле, а потом устанавливая друг на друга. Свайный фундамент – оптимальный вариант для сруба в чашу. При недостатке опыта лучше начинать строить небольшие конструкции – беседки либо бани.
