Баня с мансардой и террасой. Выбираем проект
Баня с мансардой и террасой. Выбираем проект
Вариант проекта бани 6х6м.
Сейчас множество компаний предлагают построить баню под ключ, но не все уделяют должное внимание качеству.
Выбирая проект бани с террасой и мансардой, следует проконтролировать некоторые моменты.
- На втором этаже в крыше следует делать больше окон. Экономя на окнах, вам придется, впоследствии организовывать дополнительное освещение, причем даже в светлое время суток. Плюс монтировать своими руками дополнительную вентиляцию, так как, отапливая баню, вы одновременно прогреете помещение сверху, и там будет душно.
- Обратите внимание на лестницу, прежде всего, ее нужно размещать внутри помещения, так как подниматься через улицу зимой после парилки будет, мягко говоря, не комфортно. Сама лестница должна быть пологая и обязательно иметь перила, потому как подниматься в расслабленном состоянии по крутой или винтовой лестнице, не имеющей перил не только тяжело, но и опасно.
- Для бани с мансардой и террасой, самым оптимальным вариантом является ломаная крыша, в некоторых источниках ее еще называют мансардной. Вертикально расположенные фронтоны и большой угол наклона крыши дают возможность максимально использовать полезное пространство под крышей, кроме того, конструкция получается достаточно легкой, благодаря чему можно обойтись без мощного фундамента.
- Проект бани с террасой и мансардой обязательно должен включать в себя хорошую, защищенную от пара теплоизоляцию. Потому как баня помещение влажное.
Проект бани с мансардой из блоков. Виды и планировки
Готовые проекты бань с использованием пеноблока отличаются разнообразием. Они разнятся в зависимости от площади земельного участка, от потребностей конкретной семьи с учетом ее численности, от финансовых возможностей хозяев, а также их дизайнерских предпочтений. Можно выбрать баню любого размера, к примеру, 3х4, 3х5, 3х6, 4х4, 4х5, 4х6, 5х3, 5х5, 6х5, 6х6, 6х8 м и так далее.
Для дачи со стандартной площадью участка самым подходящим выходом станет возведение бани размером примерно 6 на 4 метра или даже 5 на 7. На таком пространстве точно поместится самое необходимое: раздевалка, которая одновременно является комнатой для релаксации, душевая, парилка. Хорошим дополнением станет открытая терраса или веранда.
Можно реализовать подобный проект и вовсе в самом экономичном варианте на площади 3 на 4 м, обойдясь без открытой площадки для отдыха.
Пеноблок позволяет построить своими руками не только простую коробку большой или малой площади, но и сооружение нестандартной формы. Можно выбрать одну из готовых планировок, предлагаемых в каталогах с проектами, или разработать ее самостоятельно.

Интересный вариант — строительство бани из пеноблоков с полукруглым фасадом. Надо учитывать, что такой проект уже не «впихнешь» на площадь 5х4, 6х4 или 5х6. Если позволяет земельный участок, если есть желание построить просторную баню, к примеру, 9 на 9 метров, за необычным полукруглым фасадом разместится не только просторная парная и моечная с бассейном или купелью, но и просторная комната отдыха с гардеробом, а также вспомогательные помещения — котельная, топочная и санузел.


Хорошим выходом станет строительство двухэтажной бани.
Она компактная и не съест лишнего пространства на имеющейся в распоряжении земле.

Куда удобнее разместить все, что надо, в двух этажах, нежели пытаться построить одноэтажное здание на площади, например, 3 на 10 метров.
Планировка такого строения может включать в себя не только парилку и моечную, но и просторную комнату отдыха, бильярдную и тот же небольшой бассейн. Хотя, если баня преимущественно используется в теплое время года, этот «водоем» может находиться и рядом с баней под открытым небом, а также на веранде или под навесом, имея вполне приличный размер. Основной сложностью таких проектов считается грамотная организация стока воды. Нужно обязательно предусмотреть дренажную систему.

Достоинства двухэтажой бани:
- Если баня двухэтажная, на втором этаже всегда будет тепло за счет обогрева, идущего от парной.
- На первом размещают комнаты, непосредственно связанные с банной функцией, а также кухня и столовая. На втором — жилые комнаты.
- Такая баня будет смотреться весьма представительно по сравнению с простой одноэтажной.
- Баня с мансардой также станет хорошим выходом на небольших по площади участках.
«Вариаций на тему» двухэтажных сооружений такого назначения среди предлагаемых планировок немало. Вы можете реализовать проект настоящего банного комплекса, по сути, представляющего собой полноценный дом, под крышей которого объединено почти все, что нужно для загородной жизни: это и жилые комнаты, и гостиная, и хозяйственные помещения с гаражами.

Баня с мансардой 6 н. Особенности
Исключительность мансардных бань подразумевает полноценную реализацию разнообразных конструктивных решений. Подбирайте вариант дома-бани с учетом характерных черт. Для любителей проектирования различных вариаций строений баня с мансардой будет отличным способом реализации собственных идей. Одной из главных надстроечных конструкций мансарды является лестница. Подъем на мансарду в бане потребует ее наличия.

Следует тщательно разобрать противовесные моменты с учетом аргументов за и против. Только после учета основных характеристик личного банного сооружения допускается рассмотрение вопросов проектирования. Еще одной конструкционной особенностью бань с мансардой является конструкция кровли. Важно учесть ограниченность мансарды. Чтобы этот этаж был полезным, чаще применяют кровлю ломаной двускатной конструкции.
Нежелательна односкатная кровля, тип традиционного двускатного варианта также нельзя назвать самым удобным. Нередко используют шатровые кровельные конструкции. С геометрическими параметрами более или менее ясно. Подберите вариант подъема на мансарду с учетом того или иного варианта кровли. Например, самыми действенными считаются варианты маршевого вида, но их сложно монтировать на малых площадях. Особенно плохо адаптируются маршевые устройства к конструкции бань 4х4 м.

Больцевые лестницы снабжены достоинствами маршевых устройств. Такие системы нельзя применять к каркасным сооружениям, так как для них требуется прочная несущая опора. К стене крепят ступени. Если баня выполнена из других материалов, устройство вполне приемлемо для использования.

Устройства винтового типа не отличаются удобством, но они эффективные в плане экономии пространства. Зачастую они становятся палочкой-выручалочкой в проекте мансардной бани 4х4 или 5х5 м.
Лучший вариант проекта с верандой, террасой и мансардой предполагает размещение комнат в следующем порядке:
- первый этаж;
- парилка;
- душевая кабина или помывочная;
- тамбур;
- маленькая веранда.

Веранду часто используют в качестве обеденной зоны, заполняя лавками, стульями, столами. Это пространство обычно открытое, поэтому создается атмосфера простой природной красоты. Однако верандой иногда жертвуют в счет увеличения внутренней площади бани. На площади мансарды допускается обустройство спального места, игровой комнаты (например, бильярдной), кладовой. Если мансарда является кладовой, место отдыха целесообразней оборудовать и внизу. Для комфорта на мансарде должна быть предусмотрена общая высота помещения от 2,5 метров.

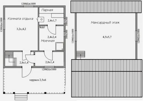
Баня с мансардой 6 н. Проект бани 6х6 из профилированного бруса
Баня из профилированного бруса 6х6 с мансардой стала популярной в последнее время, связано это по большей части с высокими эксплуатационными качествами, которыми обладает материал . Сюда можно прибавить также меньшие затраты времени и труда на создание чертежа такой бани и ее строительство, чего лишены проекты бань 6 на 6 с мансардой из бревна.Привлекательность такой конструкции можно придать за счет использования разных типов облицовочных материалов.

На схеме распространенные проекты бань с мансардой 6х6
Указанный выше проект бани 6х6 с мансардой из бруса предусматривает наличие террасы, из которой вы попадаете в небольшое помещение, в котором будет находиться коридор, а оттуда вы уже открывается комната отдыха или предбанник.
Из коридора вы также можете подняться на второй этаж по лестнице.
- Площадь предбанника рассчитана с таким условием, чтобы в данном помещении можно было расположить вешалку для одежды, которую вы будет снимать перед тем, как направитесь в парилку. А также здесь будет находиться небольшой запас дров для банной печи;
- Из предбанника дверь ведет в моечную, а потом в парилку. В моечной вы можете расположить душ с поддоном и бак с горячей водой;
- В парной будет размещаться печь-камин, которая будет топиться из комнаты для отдыха бани . Причем вход в комнату отдыха обустроен прямо из предбанника. Сделано это для того, чтобы в данном помещении не было слишком высокой влажности;

Окно в парилке
Обратите внимание!
В моечной и в парилке обычно имеются окна с небольшими размерами – 50 на 50 см, за то в комнате отдыха окно зачастую достаточно большое – 120 на 100 см.
Сделано это для того, чтобы в данную комнату поступало больше солнечного света.
В результате этого будет создаваться естественное освещение, а также это позволит вам наслаждаться прекрасным видом из окна.
- Двери в таком строении можно установить любого размера. Главное – правильно выбрать материал для них так, чтобы он отличался долговечностью, позволил теплу, как можно дольше оставаться в данном помещении и мог хорошо противостоять воздействию на него влаги;
Совет!
Двери желательно делать поменьше, чем обычные дверные конструкции.
Связано это с тем, что небольшая дверь будет способствовать лучшему сохранению тепла.
Самый оптимальный размер для банной двери – высота не более 180 см, а ширина не более 70 см.
Двери для бани
Двухэтажные бани с верандой и балконом
Чаще всего проекты бани 6х6 с мансардой можно видеть из сруба, выполненного из бревна или бруса. Что касается каркасных бань данного размера, то их сейчас встречается очень мало. Отличие этих строений – цена и материал, используемый для строительства.

Конструкция с угловой верандой
В проекте ниже представлено двухэтажное строение, здесь на первом этаже размещается терраса, а на втором этаже предусматривается расположение балкона.

Распространенный вариант первого этажа
Такой проект сруба бани 6х6 с мансардой имеет следующие решения:
- устанавливать такое строение нужно на столбчатый фундамент;
- высота потолков на первом этаже бани и втором практически одинаковая (на первом этаже – 2,25 м, а на втором – 2,20 м.);
- так как общие габариты моечной и парилки не значительные, то санузел целесообразнее будет разместить в комнате для отдыха;
- на верх можно подняться по лестнице, которая ведет из комнаты отдыха. Она обустроена под двухскатной крышей. Строительная система в этом случае монтируется из бруса 5 на 10 см;
- крышу у такой конструкции планируется покрыть еврошифером, вследствие чего по стропилам из обрезной доски на 20 мм создается обрешетка. В качестве утеплителя будет использоваться стекловата;

Второй этаж
Совет!
Дверь, ведущую на балкон лучше сделать остекленной.
Так вы позволите дополнительно обеспечить поступление солнечных лучей в данное помещение.
На 19 м2второго этажа расположено одно небольшое окно, которое размещено над лестницей, и его может быть недостаточно для полноценного освещения.
Строительство двухэтажной бани из оцилиндрованного бревна
В сравнении с конструкциями, возведенными из других материалов, такое строение имеет массу преимуществ, из которых можно выделить идеальную подгонку бревен друг к другу. Это сокращает долю использования ручного труда и время проведения строительных работ.

Сделано из бревна
Кроме этого, по причине идеальной формы бревен достигается лучшая плотность соединений между всеми элементами сруба, вследствие чего повышается процент его прочности и теплоизоляции. Деформация материала снижается до минимума.
Такая баня, возведенная своими руками, имеет превосходный внешний вид, который позволяет обойтись без внутренней и наружной отделки данного строения. А срок службы ее намного выше, нежели чем у конструкции, возведенной из бруса.
Баня 4х4 с мансардой. Сруб бани 4х4 с террасой и мансардой
Мечтаете о настоящей русской бане? Нет ничего проще! Мы всегда рады предложить вам по выгодной цене срубы бань 4х4 с террасой и мансардой. Такие постройки в полной мере отвечают всем канонам традиционной бани и при этом устанавливаются на участке в сжатые сроки.
Работаем без предоплаты
Делаем под ключ (с отделкой и печью)
Срок изготовления и доставки: от 3 дней
Покрытие крыши рубероидом Бесплатно
Покрываем металлочерепицей, ондулином, шифером
Фундамент: ленточный, свайно-винтовой, ж\б свайный
Диаметр бревен от 22 до 32 см по вашему желанию
Расстояние от пола до потолка: от 2,1 до 3 метров
Рубка: лапа полулафет, лапа кругляк, чаша, дикий стиль
Материал сруба: бревно
- Столбчатые фундаментные бетонные блоки в подарок
- Внутренние размеры в чистоте
- Рубим из зимнего леса Смоленской области (ель, сосна)
- Бесплатная доставка и установка
Площадь сруба бани: 36 м2
Размер террасы 2 м
Ручная работа




В наличии имеются уже готовые срубы из зимнего леса и вам не придется ждать.
Размеры оставшихся готовых срубов, просьба уточнять у наших менеджеров.
Калькулятор срубов
Минимальная комплектация за 320 000 руб.
Баня с мансардой интерьер. Проект
На сегодняшний день востребованы немаленькие конструкции бань с мансардой:
- 5х5 м;
- 5х6 м;
- 6х4 м;
- 6х6 м;
- 6х7 м;
- 6х8 м;
- 6х9 м.

Нет смысла оснащать вторым этажом совсем маленькое строение, например, размером 4х3 м или 4х4 м. На такой мансарде будет не развернуться. Получается, что оснащение чердачного пространства здесь – пустая потеря времени и денег.

Стоит рассмотреть некоторые чертежи, чтобы понимать, как именно строится план бани с мансардой и на чем концентрируют внимание профессиональные архитекторы.
- Баня с мансардой размером 6 на 4 м имеет все необходимые отсеки на первом этаже. Здесь есть и парная, и моечная, и комната отдыха, и даже терраса. Небольшая мансардная может быть переделана под что угодно, однако оптимальнее всего сделать там или дополнительную спальню, или бильярдную. Так после банных процедур вы сможете приятно провести время. Обратите внимание, что данный проект не рассчитан на то, что на мансарде будут жить постоянно (даже гости), поскольку планировка этой бани размером 4х6 м не предусматривает наличие туалета.

- Баня с мансардой размерами 5 на 7 м имеет полноценный санузел. Учтите, что строение с мансардой все равно считается одноэтажным, а мансардный этаж на плане так называется мансардой, а не вторым этажом. Второй этаж имеет небольшую площадь из-за того, что баня покрыта двускатной кровлей, под которой почти не остается пространства для сооружения полноценной комнаты.

- Проект этой бани площадью 6х5 м не предусматривает большого пространства под банные процедуры. Он больше всех подходит для сооружения жилого дома. Так, крыша здесь мансардная, освобождающая максимум места под комнаты, поэтому их под крышей целых две. Помимо этого, имеется большая комната отдыха на первом этаже, часть которой может быть отдано под кухню.
